Det nye boligparadigmet
Det sosiale boligbyggeriet er forlengst erstattet av en markedsstyrt utvikling. Hva har konsekvensen vært for boligenes kvalitet, tilgjengelighet og pris? Og er vi fornøyde med det?
Den sosiale boligbyggingens æra spente over siste halvdel av 1900-tallet; perioden da Staten og kommunene gikk sterkt inn i boligbyggingen med subsidierte statslån og tilrettelagte tomter. Historikeren Berge Furre har kalt systemet som ble bygget opp ”juvelen i den sosialdemokratiske orden” og understreker dermed boligpolitikkens betydning i denne perioden under sosialdemokratisk hegemoni.1 ”Treenigheten” mellom stat, kommuner og private (bl.a. kooperative) byggherrer sørget for en jevnt høy boligproduksjon over en 50-års periode, og resultatet var at boligmangelen, som hadde dominert det politiske bildet i etterkrigsårene, ble redusert til et problem for relativt få. En forutsetning for den suksessen systemet hadde, var tilgangen på billige lån med en subsidiert rente gjennom Husbanken.
Husbankens kontrollapparat, som var en del av systemet, så til at det som ble bygget holdt en viss teknisk standard, at leilighetsstørrelsen svarte på de prioriterte behovene og at rommene inne og ute kunne brukes til vanlige aktiviteter. Normene var for en stor del basert på empiriske studier av beboeres preferanser og atferd.2 Husbanken definerte også hva som ble betegnet som ekstravaganse eller overforbruk, og sørget dermed for måtehold i ressursbruken. Husbankreglene fikk virkning for det meste av boligbyggingen i Norge i denne perioden, til sammen rundt en million boliger.3
I løpet av de siste 30 årene er dette systemet avviklet. Det første slaget stod Willochregjeringen for da den rigget ned store deler av Husbankens lånesystem på begynnelsen av 1980-tallet.4 Rundt 1990 var det kommunenes og boligsamvirkets tur. Boligkrakket slo beina under kommunale tomteselskaper, gjorde slutt på kommunenes engasjement i byfornyelsen og skapte store økonomiske problemer for boligbyggelagene rundt om i landet. Senere på 90-tallet ble ansvaret for bygningskontroll overført fra det offentlige til utbyggerne, med det medfølgende skjemavelde.5 Foreløpig siste skritt i denne utviklingen kom rundt årtusenskiftet, under kommunalminister Erna Solberg. Husbanken ble omdannet til en bank for grupper med spesielle behov, og minstestandarden, som inneholdt generelle krav til boligkvalitet, ble fjernet. Husbankens andel av nybyggingen har de siste årene beveget seg mellom 15 og 30 %, avhengig av økonomiske konjunkturer.
Samlet sett fremstår disse hendelsene som en gedigen boligpolitisk snuoperasjon. Det offentlige har trukket seg tilbake fra boligsektoren og overlatt initiativ og definisjonsmakt til private aktører, i planleggingsdiskursen betegnet som en overgang fra ”governing” til ”governance”. Sett i en større sammenheng inngår endringene i innføringen av et liberalistisk regime innenfor en rekke samfunnsområder.
“Den markedsbaserte boligbyggingen har nå fungert såpass lenge at vi kan vurdere resultatene og hvordan de svarer på de boligsøkendes behov.”
Parallelt med nedbyggingen av det tidligere boligpolitiske systemet har et nytt vokst fram. Den markedsbaserte boligbyggingen har nå fungert såpass lenge at vi kan vurdere resultatene og hvordan de svarer på de boligsøkendes behov.
I denne fagkritiske artikkelen skal jeg beskrive endringer som har funnet sted i og med det nye boligparadigmet. Mitt utgangspunkt og målestokk for vurderingene er de boligkvalitetene som vant hegemoni i den sosiale boligbyggingens æra. Hovedkritikken retter seg mot egenskapene slik de blir realisert i den tette byen, primært i Oslo. Jeg skal berøre prisdannelsen, lokalisering av ny bebyggelse og kvaliteter ute og inne.
En formidabel prisvekst
I løpet av 1970- og -80-tallet gikk norske boliger, grovt sagt, over fra å betraktes som et velferdsgode, til å bli en forbruksvare (og et investeringsobjekt) i et uregulert marked. Ut fra det kunne man kanskje tro at boligprisene siden den gang hadde utviklet seg i takt med prisen på andre forbruksvarer. Hvordan kan det da ha seg at boligprisindeksen er bortimot firedoblet siden begynnelsen av 1990-årene, mens byggekostnader og konsumpriser ikke en gang er doblet (figur 1)?6
Figur 1. Oversikt over indekser fra Statistisk Sentralbyrå. For å kunne sammenlikne utviklingsforløpet starter alle kurvene i samme punkt.
Figure 1. Housing price index, construction costs and consumer price index, showing the relative rise in the price of housing.
I en artikkel med den talende tittelen ”Sosial boligpolitikk: De siste restene fjernes” beskriver OBOS-direktør Martin Mæland den politisk styrte dereguleringen av boligmarkedet.7 Han sammenlikner rammevilkårene i 1970 med dagens, og hevder at en OBOS-bolig på 60-70 kvm i dag ville kostet omkring 1 million kroner mindre dersom rammevilkårene hadde vært som den gang. I 1970 ble tomten bygslet av kommunen, mens den i dag må kjøpes for 350-450 000 kroner per bolig. Fremføring av (ekstern) teknisk infrastruktur, som han anslår til 150 000 kroner, utgjorde også kr. 0 i 1970. I tillegg kommer merverdiavgiften, som utgjør 4-500 000 kroner. En OBOS-leilighet på 60-70 kvm vil i dag koste ca 2.5 millioner kroner. Ifølge Mæland er altså rundt 40% av prisen et direkte resultat av at stat og kommuner har fjernet en rekke ytelser til boligbyggingen.
Likevel kan ikke disse endringene alene forklare den røde kurven ovenfor. De forholdene Mæland beskriver, var nemlig allerede innført i 1993. Det må eventuelt være økninger i kostnader til tomter og infrastruktur det er snakk om. Men selv om tomteprisene i sentrale områder har steget sterkt i perioden, kan heller ikke dette alene være årsaken. Heller ikke valget av tidspunktet 1993 kan forklare den voldsomme prisstigningen, selv om tiden like etter boligkrakket i 1989 representerte et lavpunkt i prisutviklingen.8 Andre forklaringer kan ligge i at Husbanken i denne perioden sluttet å gi gunstigere lån enn andre banker. Bortfallet av subsidieringen i 1996 kan ha bidratt til å løfte prisnivået og dermed redusere nybyggingen.9 I tillegg beregner utbyggerne, forståelig nok, et større overskudd fordi deres økonomiske risiko har økt. Lærdommene fra krisen i 1989-93 var at bare store utbyggere som OBOS og Selvaag overlevde, mens mange mindre boligbyggelag måtte ha statlig hjelp.
Selv om alle disse faktorene har bidratt, må hovedforklaringen til kostnadsøkningen likevel spores i markedsmekanismene: Prisene vil stige så høyt som etterspørsel og kjøpekraft tillater. I en periode med lav rente, som i dag, vil kjøperne kunne strekke seg lenger når det gjelder pris. Det nye boligparadigmet har vært fulgt av en argumentasjon om at konkurranse i markedet også vil gi de laveste prisene. Dessverre er det få tegn som tyder på at denne påstanden holder. Svarene på situasjonen fra de politiske myndighetene har vært at boligproduksjonen må øke for å få mer balanse i markedet. Prognoser for befolkningsvekst og boligbygging i storbyene forteller at det er langt fram til noen form for ”kjøpers marked” i Oslo-området.
Figur 2: Oslo kommuneplan 2008. Området Gjersrud/Stensrud fortsatt som en ubebygd (gul) sone i sør.
Figure 2. Oslo municipal plan 2008. Unused development area marked in yellow.
Bygging der det lønner seg mest
Nesten all bygging i de større byene i dag foregår som fortetting, det meste i sentrale bystrøk. Av vel 26 000 boliger bygget i Oslo mellom 2000 og 2009 ble ca 55% bygget på det relativt beskjedne arealet i Indre Sone.10 Fortettingen skjøt fart på begynnelsen av 1990-tallet og har siden bare økt. Noe sånt hadde verken planleggere eller politikere sett for seg. Da ledelsen i OBOS i 1962 vurderte framtidens tomtesituasjon i hovedstaden, så det mørkt ut: ”Oslo befinner seg i en prekær situasjon med hensyn til regulerte og byggeklare boligtomter framover”, het det i en henvendelse representantskapet gjorde til bystyret. Etter utbyggingen i Groruddalen sto bare tomtearealene i Oslo sør igjen, og hva skulle en gjøre etter det? I bystyredebatten ba OBOS-direktøren om at Sørkedalen og Maridalen ble utredet som områder for boligbygging.11 En prøveballong, ”Sørkedalsbyen”, ble sendt ut, men initiativet kom aldri utover idéstadiet. I dag, snart 50 år etter at situasjonen ble omtalt som prekær, ligger områdene Gjersrud/Stensrud i Oslo sør fortsatt ubebygd. Etterspørselen etter nye boliger i dette området har ikke vært sterk nok til å utløse bygging.
“Rundt 1990 så en ny profesjon dagens lys her i landet: eiendomsutviklerne.”
Rundt 1990 så en ny profesjon dagens lys her i landet: eiendomsutviklerne. Ifølge tilgjengelig næringsstatistikk kan vi anslå at over 1000 slike bedrifter er etablert i Norge de senere årene, hvorav omtrent en fjerdedel med mer enn 5 ansatte.12 I det nye paradigmet bestemmer eiendomsutviklernes økonomiske analyser langt på vei hvor det skal bygges, mens ulike trendanalytikere og meglere har avgjørende innflytelse på hva som skal bygges. En forutsetning for den nye arealpolitikken er salg av tomtegrunn fra kommunen til ulike private og halvprivate aktører, en prosess som startet rundt 1980. På dette viset har kommunen solgt ut et avgjørende virkemiddel for å bestemme hvor i byen det skal bygges. Kommunen kan i beste fall hive seg på vogna, finne ut hvor den går og på dette grunnlaget legge sine strategiske planer. Derfor har da også Oslo kommunes arealplan de siste årene mest lignet en overordnet skisse.13
Hva så med kommunens rolle og hva med miljøargumentene for fortetting? Jo, det er ganske riktig stor enighet om fortettingsstrategien fra ulike hold. Det er trolig derfor tettheten drives så høyt, med kommunens velsignelse. Mitt poeng er at de avgjørende valgene tas av utbyggerne og at tomteutviklerne arbeider langsiktig for å gjøre arealer klare for bygging. Eiendomsutviklernes økonomiske kalkyler har til nå tilsagt at fortjenesten vil være størst ved bygging i sentrale strøk, på tross av alt det innebærer av høy tomtepris, infrastrukturkostnader og en ofte konfliktfylt og langtrukken plan- og byggeprosess. Dette gjelder for alle de større byene i landet og trolig for de fleste småbyene også. Det er kostbart å bygge sentralt, og konsekvensen blir at områdene må hardpakkes for å få fortjenesten opp på det ønskede nivået. I det følgende utdypes denne sammenpressingen av byen og konsekvensene dette får for boligene.14
Hva kjennetegner de nye byboligene?
Vi kan begynne utendørs. Gjennom mange år var en utnyttelsesgrad på 1,5 satt som høyeste grense for nye boliger i indre sone i Oslo.15 Omsatt til tomteutnyttelse er dette noe lavere enn TU=200%, som tilsvarer den tettheten en finner i spekulasjonsbyggingen på slutten av 1800-tallet. Siktemålet for byfornyelsen på 1980-tallet var blant annet å ”lufte ut” i disse tette leiegårdskvartalene, rive bakgårdsbygninger og gjøre gårdsrommene egnet til lek og opphold.16 Samfunnet satset store ressurser på dette og vi kan i ettertid se at byfornyelsen ga resultater. Det viktigste var kanskje at bysentrum, gjennom forbedringene av boligmassen og bystrøkene, ble et sted hvor store befolkningsgrupper, også barnefamilier, kunne tenke seg å bo.
“De færreste nye boliganlegg sentralt i storbyene har i dag en så lav tetthet som TU=200%.”
De færreste nye boliganlegg sentralt i storbyene har i dag en så lav tetthet som TU=200%. En undersøkelse NIBR gjorde i 1997 av 35 nye boligkomplekser i sju norske byer viste at tomteutnyttelsen jevnt over lå mellom TU=200 og TU=300%, enkelte helt opp til TU=600%.17 De siste ti årene har tettheten i nye prosjekter trolig økt ytterligere.
Konsekvensen av den høye utnyttelsen er at det halvoffentlige oppholdsarealet, også kalt fellesarealet, ofte blir redusert til et atkomstareal med avfallssortering og frastillingsplass for sykler, en sandkasse og et vippedyr. Stort mer er det ikke plass til. Beboerne i de 35 boliganleggene ble spurt om hvor ofte de oppholdt seg utendørs på fellesarealene. Ikke overraskende viste det seg at bruken av utearealene i stor grad svarte til kvaliteten. De relativt få utearealene som hadde en viss rommelighet, gode solforhold og var tilrettelagt for lek og opphold, ble mye brukt. De områdene som hadde best utearealer, hadde også flest barn. For øvrig utgjorde barnefamiliene bare 10% av husholdningene i denne undersøkelsen. En undersøkelse av småboliger i Trondheim fra 2006 bekrefter inntrykket av at beboerne gjerne oppholder seg utendørs dersom det er lagt til rette for det.18
Figur 3: Prinsipper for parkeringsløsninger og uteareal i byboliger (Guttu og Schmidt 2008). De aller fleste hører til blant de tre nederste (den nederste har kun uteareal på tak).
Figure 3: Principle for parking solutions and outdoor areas in housing projects (Guttu and Schmidt 2008). Most projects fall into the bottom three categories (the bottom one only has outdoor areas at roof level).
Den økte utnyttelsen har også ført med seg en endring av bebyggelsestypen. På 1980-tallet ble det i stor grad bygget i kvartaler. Med tanke på trygge utearealer for barn og skjerming mot støy og forurensning på bakkenivå har kvartalsformen store fordeler. Kvartalet som byggekloss i byplanen representerte en fortsettelse av den klassiske måten å bygge byer på, slik vi kan se det i historiske byer over hele Europa. Et kjennetegn ved kvartalsformen er at den differensierer uterommene i et hierarki fra den offentlige parken og gaten ned til det halvoffentlige gårdsrommet og videre til den private balkongen og terrassen. Kvartalsformen gir i tillegg et samlet, og dermed brukbart, uterom. Funksjonalismen brøt med kvartalsformen og baserte utbyggingen på frittstående blokker, såkalt lamellbebyggelse, som etterlater et uterom som mer eller mindre uklart flyter rundt mellom bygningene. Det er denne bebyggelsesformen som nå igjen er blitt gjengs.
Bakgrunnen for dette skiftet kan være sammensatt. Arkitektonisk kan man se det slik at den nye modernismen tar opp igjen funksjonalismens bygningstyper. Sosialt kan man si at den individuelle boligen med sin private balkong har fått forrang fremfor det felles gårdsrommet. Dessuten kan en hevde at frittliggende blokker tross alt er best egnet til å gi en følelse av rommelighet sett fra den enkelte leiligheten. Denne bygningsformen gir et visst utsyn og gløtt av sol ved ekstremt høye tettheter, dog uten at uterommet av den grunn blir mer brukbart.
Et nytt trekk er det underbygde utearealet, fremtvunget av en kombinasjon av tetthet og parkeringskrav og helt nødvendig dersom ikke hele utearealet skal gå med til parkering (figur 3). I studien ”Fortett med vett” i 2008, med gjennomgang av 27 eksempler på byboliger i fire store byer, fant vi bare noen få med uteareal på bakken (Guttu og Schmidt 2008). Garasjelokket kan ligge på bakkenivå, men er i de mange ”bryggeprosjektene” hevet en etasje opp på grunn av fare for vanninntrengning fra nærliggende sjø. Dermed blir det mindre tilgjengelig for andre enn beboerne. At lokket bare i de sjeldneste tilfellene har et jorddekke som gjør det egnet for høyere vegetasjon, er en vidtrekkende svakhet ved utearealet når det gjelder trivsel, mikroklima og håndtering av overvann. Ikke sjelden gjerdes hele området inn og stenges med låst port. Uten å moralisere over at beboere i storbyen på denne måten forsøker å trygge sin tilværelse, kan man hevde at avstengningen er sosialt ekskluderende og gjør byen mindre opplevelsesrik.
“Når leiligheter krympes, må elementære plankvaliteter skjæres bort.”
At det nesten utelukkende er bygget høyere enn fire etasjer, har gitt en stor mengde boliger med heis og dermed gode muligheter for rullestoltilgjengelighet. Denne muligheten blir dessverre undergravd av et stort antall små leiligheter; leiligheter med rom som verken er tilpasset rullestol eller vanlige møbelmål og som heller ikke tilfredsstiller byggeforskriftenes krav om at det skal være enkelt å innpasse toalett som kan benyttes av orienterings- og bevegelseshemmede19 Når leiligheter krympes, må elementære plankvaliteter skjæres bort. Kjøkken som eget rom med vindu er forlengst forlatt, klesboden er henvist til kjelleren, soverom trikses til ved at de to sidene av dobbeltsenga har atkomst gjennom hver sin åpning mot oppholdsrommet, oppholdsrom blir gjennomgangsrom og atkomsten til leiligheten skjer ikke sjelden gjennom kjøkkenet. 20Men ikke nok med at kvadratmeterne skrumper. Bygningskroppene har en tendens til å bli tykkere, også dette av økonomiske grunner, og færre leiligheter gjøres følgelig gjennomgående. Vi finner et økende antall ensidig orienterte boliger i blokker med adkomst fra midtkorridor. Dette gjør prosjektet billigere å bygge, men samtidig går en vesentlig kvalitet i byboligene tapt. “Nytt er det imidlertid at slike barberte boliger markedsføres med trendy betegnelser som ”living in a box””Å differensiere boligkvaliteten etter beboernes lommebok er en annen side ved det nye boligparadigmet. De store forskjellene som skapes fordi det ikke settes noen minstestandard, er kanskje den mest alvorlige konsekvensen av den markedsbaserte byggingen og et radikalt brudd med etterkrigstidens likhetstankegang.
Borettslaget Carl Berner Terrasser. Startbos leiligheter i Sinsenveien. Arkitekter: Voll Arkitekter AS. Bebyggelsestype, snitt med uteareal. Boligene ble bygget i ulike størrelser fra ”small” (20 kvm) til ”x-large” (80 kvm). ”Large” og ”x-large” hadde 1-2 utleiehybler tillagt boligen som en mulighet for fleksibilitet og inntekt for husholdningen. Hyblene kan skilles ut og selges som egne eiendomsenheter (andeler).
The housing coop Carl Berner Terrasser (Voll Arkitekter AS). General typology and section showing outdoor areas.
The housing coop Carl Berner Terrasser (Voll Arkitekter AS). General typology and section showing outdoor areas.
Planer, borettslaget Carl Berner Terrasser. Startbos leiligheter i Sinsenveien. Arkitekter: Voll Arkitekter AS. Enkelte av enhetene har utleieenhet. Hyblene kan skilles ut og selges som egne eiendomsenheter (andeler).
Plans, Carl Berner Terrasser, Sinsenveien, Oslo. Voll Arkitekter AS.
Fra borettslaget Carl Berner Terrasser. Uteareal, atkomstkorridor, interiør.
From the housing coop Carl Berner Terrasser. Outdoor area, access corridor, interior.
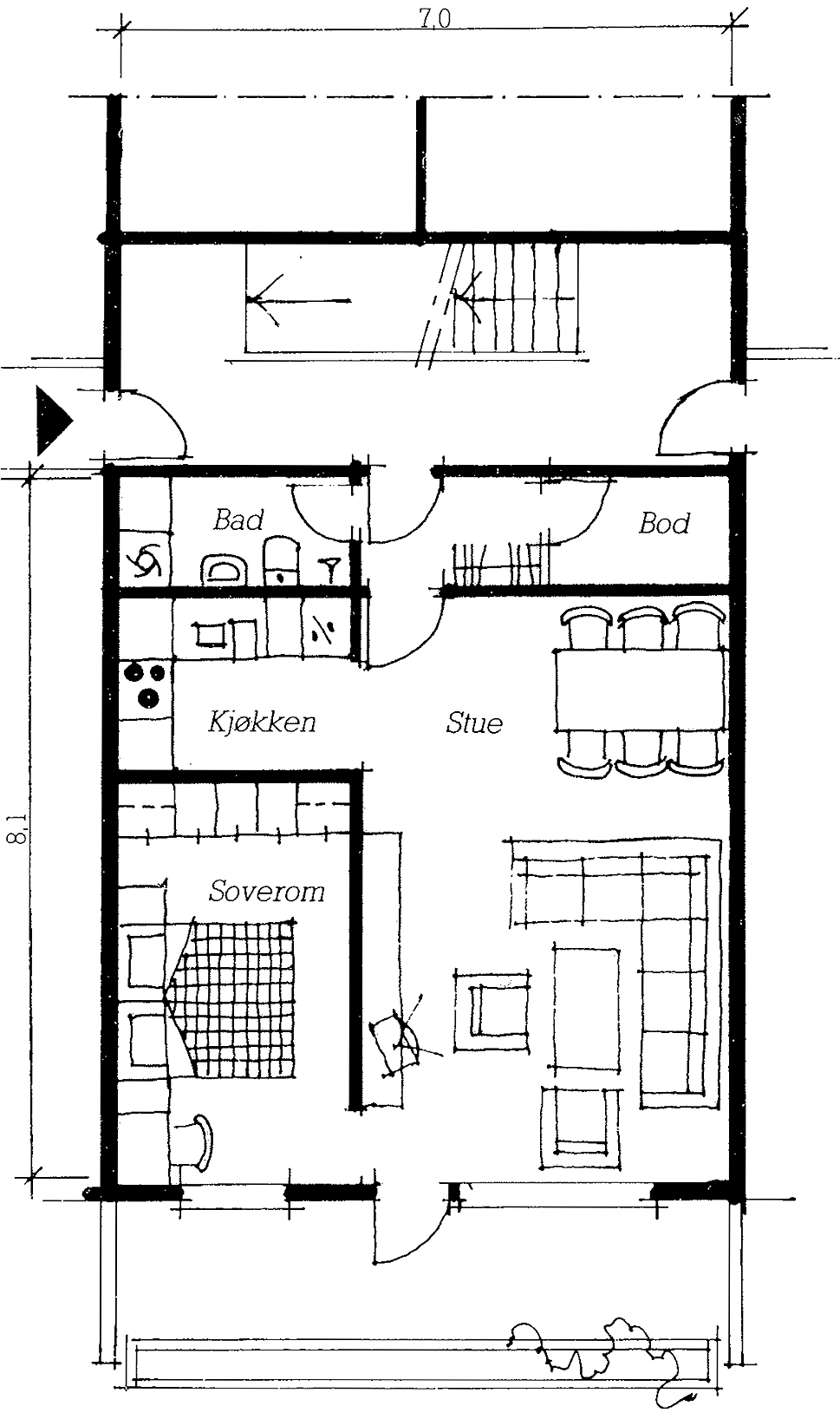
“Mindreverdig planløsning” hentet fra Husbankens hefte God bolig fra 1985. Leilighet for to personer på 57 kvm BA.Teksten til illustrasjonen lyder: ”Dette er en ”typisk” plan fra den midterste leiligheten i en trespenner. Den får dagslys bare fra en side. Kjøkkenet ligger i en mørk krok. I tillegg er badet og entreen altfor trange. Det er blant annet ikke plass til badekar på badet og det er heller ikke tilgjengelighet for rullestolbruker”. Selv med disse manglene ville en toroms leilighet som denne tilhørt det øvre sjiktet av det som bygges i dag.
“Substandard plan”, example from a State Housing Bank booklet from 1985. Though presented as a bad example then, this plan would represent a high level of quality today.
Utbyggere som finkjemmer markedet, vil finne at kjøpekraften hos mange boligkunder ikke rekker til en fullverdig bolig. Eller sagt på en annen måte: det er marked også for boliger som er skviset når det gjelder størrelse, planløsningskvalitet, lys og luft. Av økonomiske grunner legges prosjektene med mindreverdige boliger i de lavere etasjene, samtidig som de mer luksusbetonte toppleilighetene får breie seg i sol, lys og luft. Slik gjorde man det også i den liberalistiske byggingen på 1800-tallet, med mørke bakgårdsleiligheter for tjenerskap og andre mindre bemidlete. Nytt er det imidlertid at slike barberte boliger markedsføres med trendy betegnelser som ”living in a box”, ”studioleiligheter” o.l. i stedet for den nøkterne, men akk så sanne betegnelsen ett roms leilighet.22
Sosiale konsekvenser
Et argument for det som er kalt ”den nye gråbeinstandarden”, har vært at ungdom ”kommer seg inn på boligmarkedet” og kan begynne å klatre. Jeg vil ikke benekte at dette kan være positivt for dem som på denne måten klarer å etablere seg med egen bolig. Men det viser seg at en stor del nye boliger i storbyene ikke bebos av eieren – de kjøpes for utleie. Andelen leieboliger i Oslo ligger nå rundt 30%. Liberaliseringen av boligmarkedet har gitt oss en ny ”gårdeierstand”, folk som plasserer pengene sine i bolig og tjener godt på utleie og verdiforøkelse. Mye kritisk kan sies om det gamle leiegårdssystemet, men man visste i hvert fall hvem som hadde ansvaret for gården og leiligheten. Nå er dette spredt på en stor mengde individer. Hvordan de vil forvalte boliganleggene på lang sikt, gjenstår å se.23
Det er heller ikke gitt at disse boligene også i framtiden vil tjene som springbrett for ungdom i en boligkarriere. Like sannsynlig er det at de dårligste boligene i et uregulert boligmarked vil utgjøre et lavpristilbud for boligkjøpere med liten betalingsevne og bli deres permanente bolig.
De aller fleste beboere vil hevde at de liker seg og er fornøyd med sin boligsituasjon. Er ikke situasjonen da til å leve med? Det viktigste bør vel være at skoen kjennes god for den som har den på? Heldigvis har vi mennesker en utrolig evne til å tilpasse oss vår skjebne. Det gjelder både vonde sko og ditto boliger. Så lenge vi har et fast bosted, vil vi tendere mot å like oss der. Derfor bør en se på flyttefrekvenser og spørre folk som har flyttet om hvorfor de valgte å forlate den forrige boligen. Dette kan og bør kartlegges empirisk.
Blant våre nærmere 800 respondenter i byboligundersøkelsen var leieboerne klart mer kritiske enn dem som eide boligen de bodde i, også innenfor det samme boliganlegget.24 Det kan skyldes faktiske forskjeller innad i anlegget, men man kan heller ikke se bort fra at eierne har økonomiske grunner til å forsvare sin boligsituasjon. Omdømmet kan bety mye for prisen på boligen og tilsier at folk i større grad vil omtale boligsituasjonen i positive vendinger.
Fra flere hold rapporteres det at nye sentrumsnære boliganlegg med små leiligheter blir rene gjennomtrekksområder. I en undersøkelse av levekår i 68 byområder i Stavanger går det fram at sonen Badedammen, sentralt i byen, tilhører bunnsjiktet (Stavanger kommune 2010). Mellom 2002 og 2006 økte befolkningen her med 160% takket være massiv fortetting. Undersøkelsen forteller at denne sonen i gjennomsnitt hadde så lite som 1,25 beboere per bolig. Barn utgjorde bare 7% av befolkningen. Forskjellene i levekår innen området hadde dessuten økt markert. Utviklingen kommer ikke som noen overraskelse. Området har nå 66% små boliger. Badedammen hadde også størst andel med stor gjeldsbyrde og størst utflytting av samtlige soner.25 Fra andre undersøkelser vet vi at flyttegrunn nummer en er at boligen er for liten (figur 4)
“Fra flere hold rapporteres det at nye sentrumsnære boliganlegg med små leiligheter blir rene gjennomtrekksområder.”
Konklusjon
Den norske boligpolitikken har gjennomgått så omfattende og dyptgripende endringer at man må kunne snakke om et nytt paradigme. Jeg har i denne artikkelen beskrevet resultater av dette nye boligparadigmet. En formidabel prisvekst har funnet sted for sentralt beliggende boliger. Flere studier forteller at tettheten ved bygging i sentrale strøk i de store byene er drevet så høyt at utearealet har mistet mye av sin verdi som felles oppholdsareal. Ved lamellbebyggelse svekkes denne verdien ytterligere. Jeg vil hevde at den høye tettheten i tillegg reduserer boligkvaliteten innendørs, med solløse og mørke leiligheter i de nederste etasjene som konsekvens. En betydelig del av disse boligene er ensidig orientert, de er svært små og med dårlig brukskvalitet. At den lave kvaliteten uten- og innendørs fører til sosialt utstabile områder med mye flytting, gjør bildet av den nye byboligen om mulig enda dystrere.
- Furre 1991 s. 388
- Svennar 1975. Husbanken 1985
- Husbanken finansierte ca 2/3 av 1,5 mill. boliger bygget mellom 1946 og 1996 (Reiersen og Thue 1996 s. 444).
- Hansen og Guttu 2000
- Edvardsen m.fl. 2004
- Siden 1993 har konsumprisindeksen økt med ca 40 %. I samme periode har byggekostnadene for boliger økt ca 75 %, mens boligprisene har økt ca 270 %. Boligprisindeksen omfatter både nye og brukte boliger. Prisutviklingen for nytt og brukt følger samme mønster. Indeksen for blokkboliger har steget betydelig mer enn for eneboliger (SSB).
- Mæland 2008
- Først mot slutten av 1990-tallet hadde boligprisene klatret høyere enn byggekostnadene.
- Husbanken ga lån til en større andel av boligens kostnad, hadde lavere rente og lengre tilbakebetalingstid. Husbankens andel av landets totale boliglån har også sunket drastisk i denne perioden Det er lavere rente enn markedsrenten (subsidieringen) som betyr noe i mitt resonnement.
- I følge Oslostatistikken
- Hansen og Guttu 2000
- Bedrifts- og foretaksregisteret. Alle bedrifter med kun en ansatt er ekskludert i vårt tall.
- Plan- og bygningsetaten opplyser at dette ikke lenger blir akseptert og at Oslo må lage en vanlig arealplan på linje med andre kommuner.
- Fortettingen blir stimulert av planleggere og miljøvernmyndigheter, men min påstand er at den avgjørende drivkraften ligger i markedsforhold.
- Utnyttelsesgrad ble definert som brutto golvflate på brutto tomt, regnet ut etter nærmere angitte regler.
- Guttu 2003
- Guttu og Martens 1998
- Støa m.fl. 2006
- TEK 97 § 10-32 Med små boliger menes i denne artikkelen boliger mindre enn 50 kvm.
- Schmidt red. 2009
- Støa m.fl. 2006
- Schmidt red. 2009
- Forløpig fungerer Borettsloven, med sitt forbud mot å leie ut mer en tre år, som et bolverk mot ytterligere oppsmuldring av eiendomsforholdene.
- Guttu og Martens 1998
- For ordens skyld bør det legges til at levekårene i Badedammenområdet har utviklet seg positivt de to siste årene og at området nå er nummer tre fra bunnen.
Edvardsen, Hege Marie m.fl. (2004): Byggesaksreformen – kvalitet gjennom papirflommen? NIBR rapport 2004:21
Furre, Berge (1991): Vårt hundreår: Norsk historie 1905 – 2000. Det norske Samlaget.
Guttu, Jon (2003): Den gode boligen: Fagfolks oppfatning av boligkvalitet gjennom 50 år. AHO Avhandling 11
Guttu, Jon og Schmidt, Lene (2008): Fortett med vett: Eksempler fra fire norske byer. Husbanken, NIBR og MD
Hansen, Thorbjørn og Guttu, Jon (2000): Oslo kommunes boligpolitikk 1960 – 1989: Fra storskalabygging til frislepp. NIBR/NBI
Husbanken (1985): God bolig
Mæland, Martin (2010): ”Den sosiale boligpolitikken: De siste restene fjernes”. OBOS-bladet 2008:2
Reiersen, Elsa og Thue, Elisabeth (1996): De tusen hjem: Den Norske Stats Husbank 1946 – 1996. Ad Notam Gyldendal
Schmidt, Lene (red.) (2009): Små boliger – en kunnskapsoversikt. NIBR rapport 2009:1
Statistikk.stavanger.kommune.no/filer/rapportlevekår2010
Statistisk Sentralbyrå (http://www.ssb.no/bygg/)
Støa, Eli, Høyland, Karin og Wågø, Solvår (2006): Bokvalitet i små boliger: Studier av fem boligprosjekter i Trondheim. SINTEF Teknologi og samfunn
Svennar, Elsa (1975): Boligens planløsning. Håndbok 25 NBI
I småboligundersøkelsen fra Trondheim oppsummeres kvalitetsmanglene innendørs slik, ”vurdert ut fra faglige kriterier” (Støa m.fl. 2006):
- Manglende eller for liten entré
- For lite lagerplass
- For lite kjøkken
- Ikke eget soverom
- Ikke tilrettelagt for bevegelseshemmede
- Ikke tilpasningsdyktig til endrede behov
- Dårlig skjerming av privatliv
A new housing paradigm
By Jon Guttu
Since the demise of social housing construction in Norway in the late 1990’s, and the reduction in the scope and quality controls of the State Housing Bank, new housing development in the cities has been left largely in the hands of private developers. In this article, Jon Guttu traces the consequences of this turnaround in housing policy for the quality, price and availability of new housing. The background for comparison is the central quality definitions of the previous era.
Prices have increased. Density has been driven so high that the outdoor areas are reduced below a functional minimum. This increased density also has consequences inside the units, for total area, planning, daylight and orientation. The changes wrought in the area of housing development are so profound as to constitute a new paradigm, Guttu concludes.








