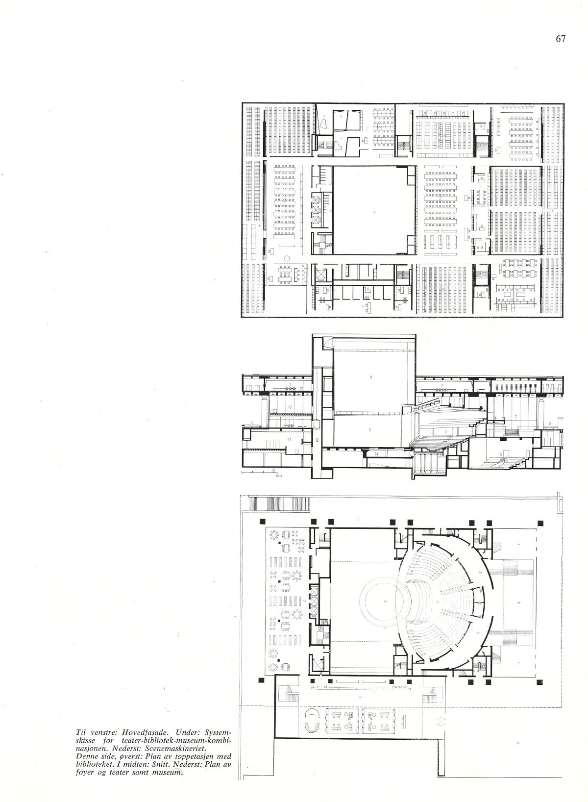
Saarinens siste verk
The Vivian Beaumont Repertory Theater and The Library and Museum of The Performing Arts
Publisert på nett 05. november 2019.
Opprinnelig publisert i Arkitektur N nr. 3 – 1967.
For å få full tilgang på alt innhold i Arkitektur N kan du kjøpe eller abonnere på papirutgaven.





