Arkitekt: 4B Arkitekter AS
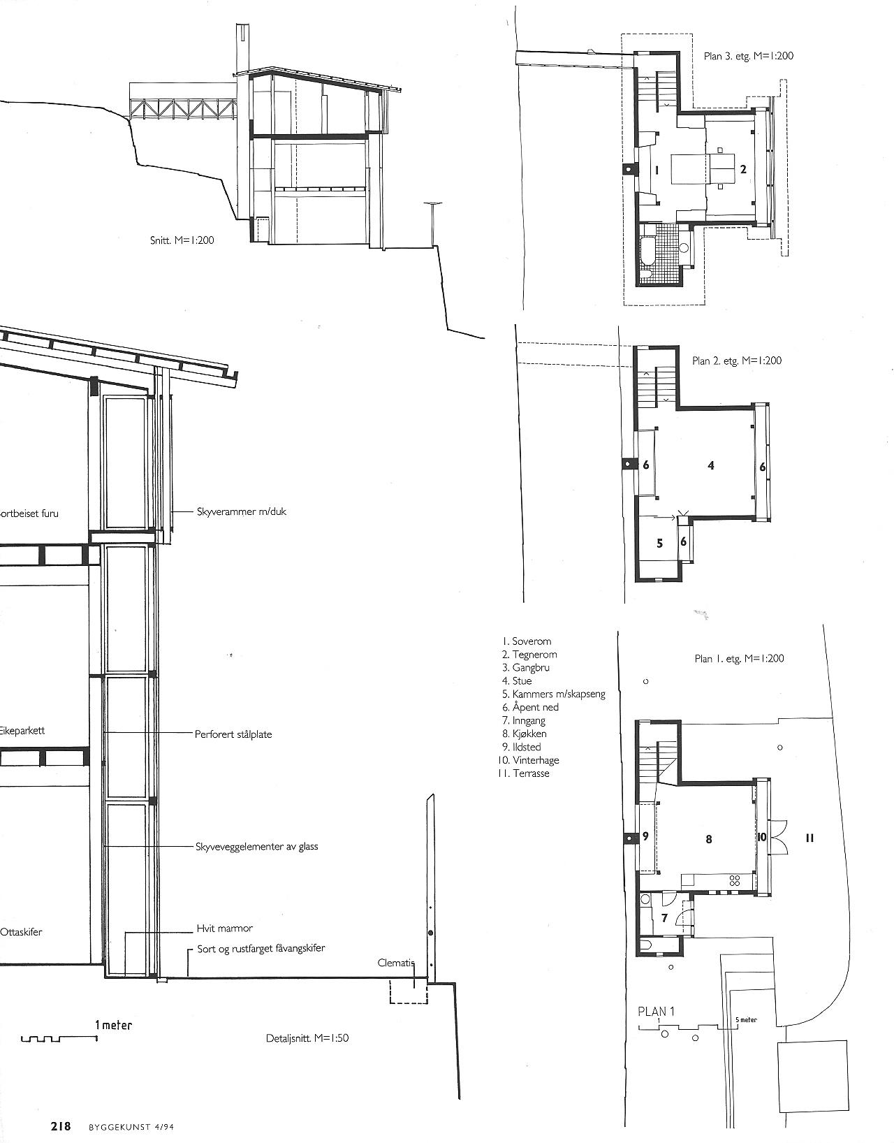
Huset står på en tidligere hytteeiendom på Kjærnes ved Bunnefjorden og ble planlagt høsten 1989. Tomten er omlag tre mål stor, men praktisk talt ubebyggelig uten store og kostbare inngrep i et landskap og en vegetasjon som er uvanlig vakker. Lys- og utsiktsforholdene varierer sterkt på grunn av den dramatiske topografien og den ukultiverte og tette blandingsskogen. Det er sjelden å oppleve tomteforhold hvor stedets identitet blir så sterkt bestemt av lysforholdene. Det ble derfor særs viktig å ta hensyn til dette i organisering, planer og snitt. Byggherrene ville, med et beskjedent romprogram for to voksne uten barn, lage et enkelt og klart formulert hus, men med størst mulig variasjon i romopplevelsene.
Prosjektinformasjon
- Ferdigstilt: 1993
- Adresse: Nebbaveien 9, Ås
- Arkitekt: 4B Arkitekter AS
- Medarbeidere: Bjørn Hovstad
Publisert på nett 18. august 2017.
Opprinnelig publisert i Arkitektur N nr. 4 – 1994.
For å få full tilgang på alt innhold i Arkitektur N kan du kjøpe eller abonnere på papirutgaven.







