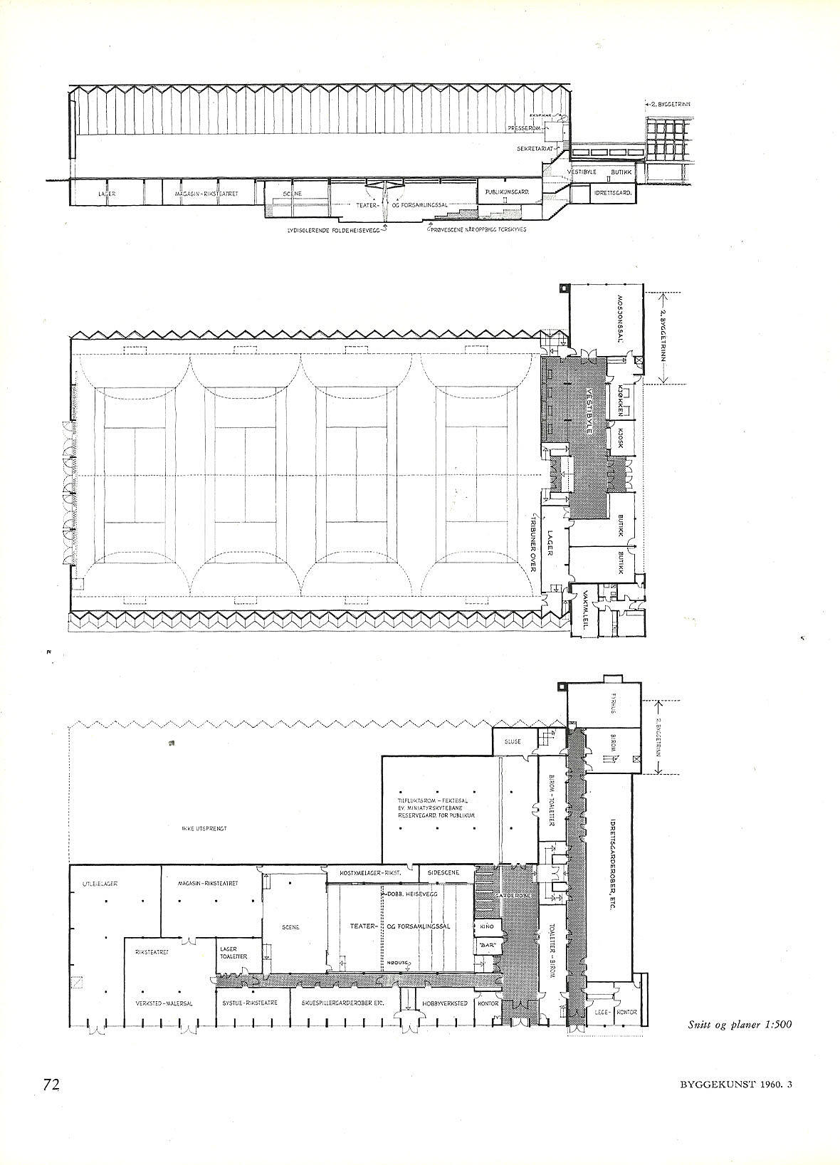
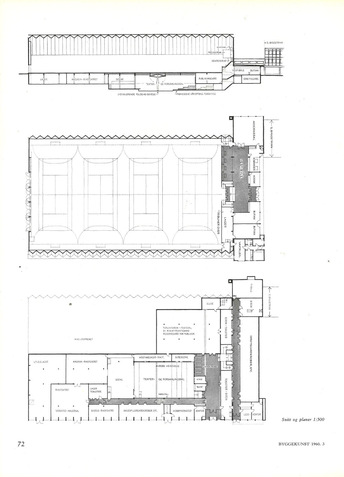
Njårdhallen
Arkitekt: Frode Rinnan, Olav Tveten, Roar Wik
Prosjektinformasjon
- Ferdigstilt: 1960
- Adresse: Sørkedalsveien 106, 0378 Oslo
- Arkitekt: Frode Rinnan, Olav Tveten, Roar Wik
Publisert på nett 10. juli 2018.
Opprinnelig publisert i Arkitektur N nr. 3 – 1960.
For å få full tilgang på alt innhold i Arkitektur N kan du kjøpe eller abonnere på papirutgaven.
Stikkord Bjørn Winsnes
4








