
Skjoldtunet sykehjem
Arkitekt:
Anna og Jostein Molden AS
- Ferdigstilt: 2000
- Adresse: Skjoldveien 19, Bergen
- Oppdragsgiver: Bergen kommune
- Arkitekt: Anna og Jostein Molden AS
- Medarbeidere: Gudrun Molden, Per Højgaard Nielsen, Ragnvald Winjum, alle sivilark. MNAL
- Landskapsarkitekt: Instanes AS
- Landskapsarkitekt medarbeidere: Olav Tveitnes, landskapsark. MNLA
- Interiørarkitekt: Space ANS Elisabeth Amundsen, interiørark. MNIL
- Brutto areal: 4 700 kvm
- Kostnader ekskl. mva: 68 mill. kr
- Fotokreditering: Jostein Molden, Morten Molden
Etter at det ble avholdt arkitektkonkurranse i 1994 ble prosjektet utsatt og så omprogrammert tre år senere. Nye tanker om organisering av sykehjemsanlegg hadde slått rot; det skulle være mindre institusjonspreg og mer vekt på miljø og bokvalitet. På dette grunnlaget forelå det i 1998 et nytt prosjekt, hvis hovedmål var å utforme et funksjonelt og trivelig anlegg som tilpasser seg småhusmiljøet i målestokk, med varierte huskropper i harmoni med størrelsen på eneboligene i nabolaget.
Hoveddisponering
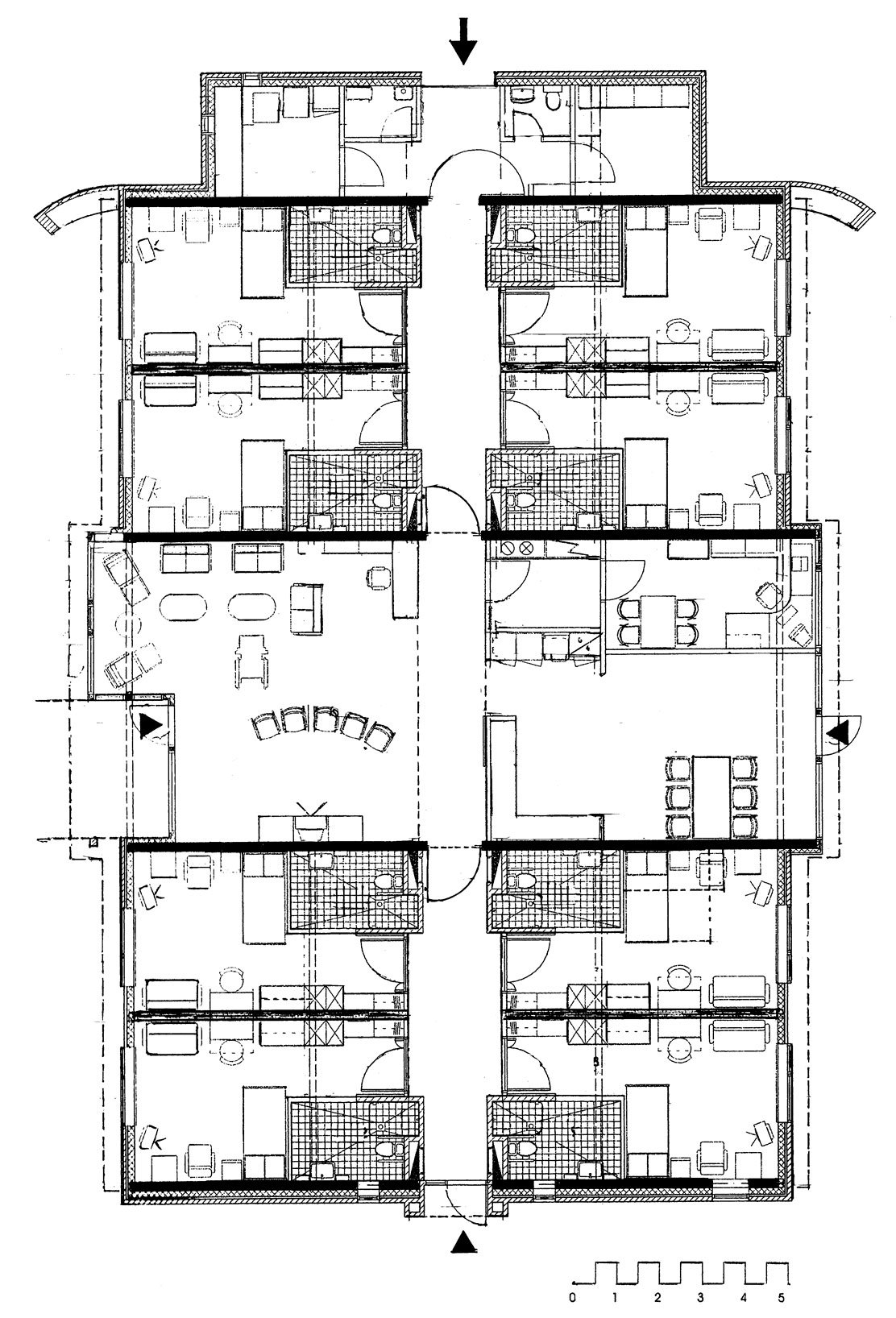
Boavdelingene danner byggeklossene i anlegget. Til sammen åtte boavdelinger utgjør pleieavdelingene, tre avdelinger for aldersdemente og fem avdelinger for sykehjemspasienter. Bolig for aldersdemente er plassert på bakkeplan i vestre del, mens boenhetene for sykehjemsdelen er fordelt på to-etasjers bygg i østre del av anlegget. Boavdelingen knytter seg til en fellesbygning som utgjør ryggraden i anlegget. Den strekker seg i øst/vest-retning og inneholder fellesfunksjoner.
Boavdelingene har hver åtte boenheter gruppert i et fellesskap med stue, kjøkken, vaskerom, bod, kontor/arbeidsrom og uteplass. Personalet er knyttet til sin bestemte boavdeling med nødvendige arbeidsrom innen avdelingen. Bestilling og leveranser, inklusive ferdigmiddagsservering, styres separat. Hver avdeling er slik mest mulig selvforsynt og fungerer som en hjemmeenhet. Boenhetene er på 24 kvm og har hver sin toalett/dusjenhet. Sengeoppstilling langs baderomsvegg gir muligheter for romslig stueinnredning mot vindusfasade. Adkomstslusen er møblerbar. Gangarealet i midtområdet står i åpen forbindelse med stuen, og kan også åpnes med skyvedøren til kjøkkenområdet. Det er utgang til hage fra både kjøkken og stueareal.
Utearealer
Plandisponeringen deler utearealene i ulike soner. Hver boavdeling har sitt uteområde, som er parkmessig behandlet. Dagavdelingen og de tre bokollektivene for aldersdemente sokner til et felles uteareal, som igjen er seksjonert. En overdekket plass syd for felleshuset er spesielt behandlet som et indre rom, og avsluttet med prydtrær mot syd. Rehabiliteringsavdelingen i 2. etasje har rampe direkte til terreng.
Hageanlegget er en del av terapien. Snodde veier, fontenedam og lune lufteplasser utvider mulighetene for opplevelser og uteopphold. Anlegget har vist seg å fungere godt. Et uthus og en grønsakshage bidrar til å aktivisere uteområdet.
Materialer
Yttervegger er i slemmet tegl. To fargevarianter skiller boavdelingene. Taket er tekket med teglstein i flere fargenyanser. Takhøydene varierer, noe som ytterligere understreker småhuspreget.
Skjoldtunet residential care home
Architects: Anna og Jostein Molden AS
The project is based around the residential wards, and takes its scale from the surrounding fabric of small suburban houses. External walls are rendered in two colours. The varied roofscape emphasises the scale references.
There are eight wards, all connected to a central building housing the communal functions. Each ward has eight rooms grouped around a common sitting room. Staff are assigned to and have their offices on each ward. Each single room has toilet and shower, and can be furnished with both bed- and sitting area. The central circulation area is open to the common sitting room.
The building footprint divides the outdoor areas into different zones. Each ward has its own outdoors. The gardens are part of the therapy, with paths, sheltered seating and a vegetable garden.







