Vekterkvartalet, Moss
Arkitekt: P. A. M. Mellbye
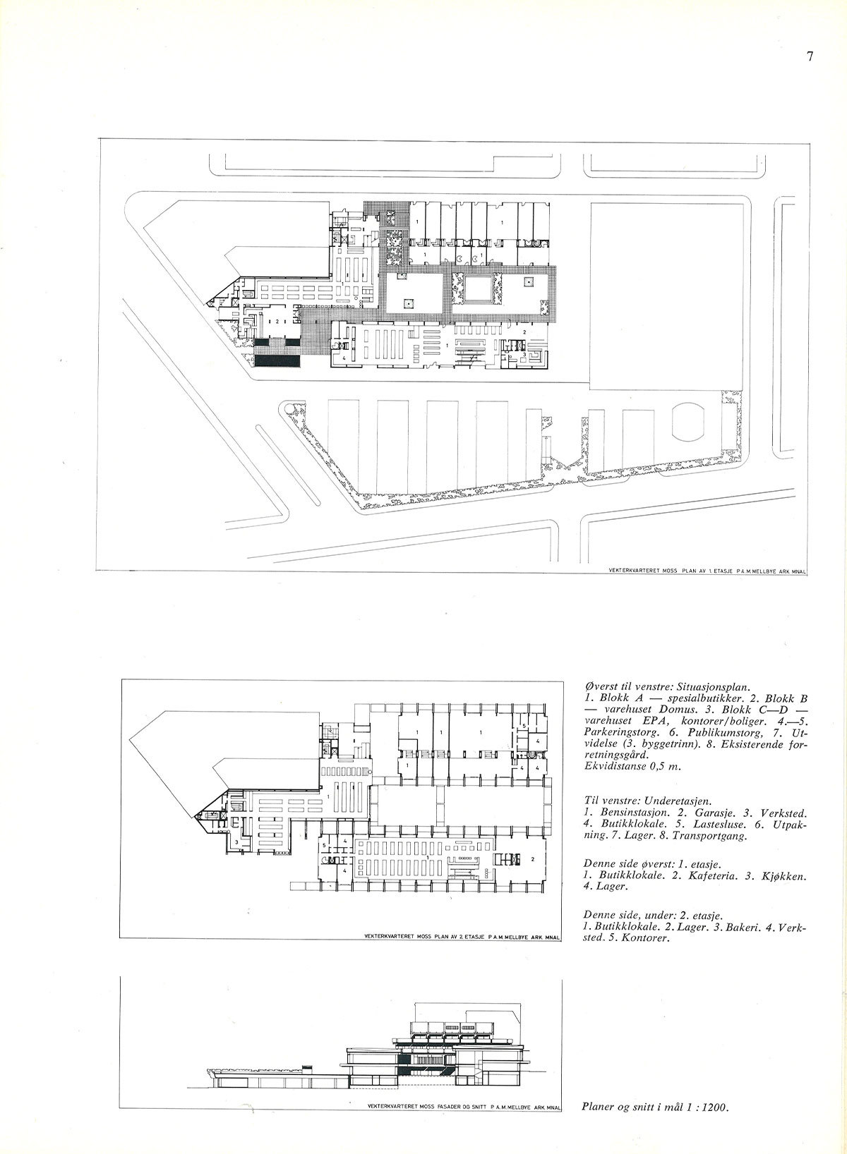
Med utgangspunkt i byplankonkurransen som ble avholdt i 1958 ble vekterkvartalet planlagt og bygget etter tidens prinsipper for kjøpesenter med Peter Andreas Munch «P.A.M» Mellbye (1918-2005) som arkitekt. Parkering og biler ble lagt på den ene og gågate på den andre siden og varetilførsel i underetasje. Byggeprosjektet sto ferdig i 1966 med blant annet EPA, Domus, mindre spesialbutikker og et åpent torg midt i.
Vekterkvartalet, Moss ble tildelt Betongtavlen 1966.
Prosjektinformasjon
- Ferdigstilt: 1965
- Adresse: Dronningens gate 3,5 og 7
- Arkitekt: P. A. M. Mellbye
- Medarbeidere: Odd Aksum og Herman Riseng. Hageanlegg: Grindaker og Gabrielsen MNHL
Publisert på nett 05. november 2019.
Opprinnelig publisert i Arkitektur N nr. 1 – 1967.
For å få full tilgang på alt innhold i Arkitektur N kan du kjøpe eller abonnere på papirutgaven.









