Villa Stenersen
Arkitekt: Arne Korsmo
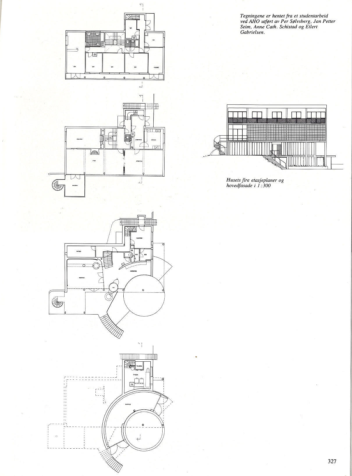
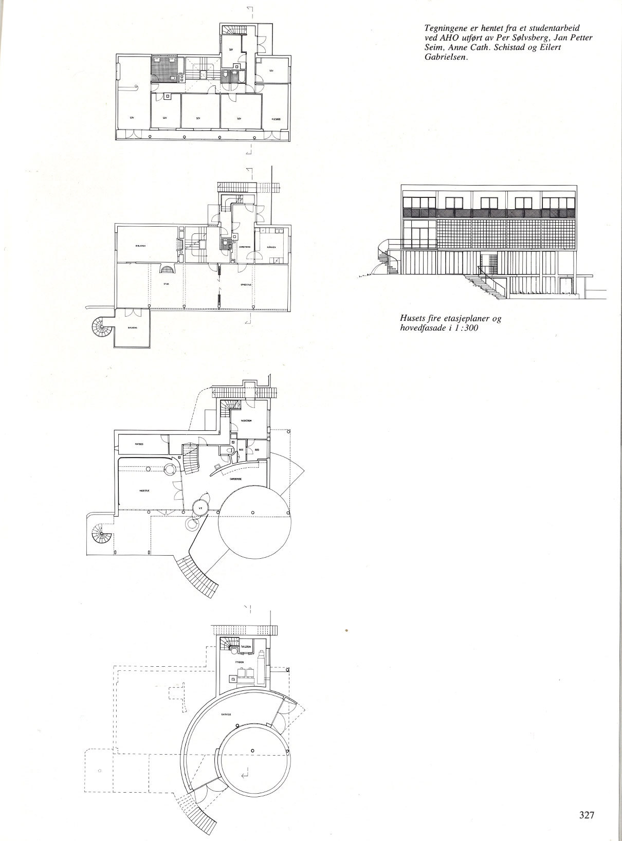
Villa Stenersen er tegnet av arkitekt Arne Korsmo og ble bygget i 1937–1939 for finansmannen, kunstsamleren og forfatteren Rolf Stenersen og hans familie. Huset skulle tjene både som bolig og som ramme for den store kunstsamlingen og regnes som ett av hovedverkene i norsk funksjonalisme.
Prosjektinformasjon
- Ferdigstilt: 1939
- Adresse: Tuengen allé 10c, Oslo
- Arkitekt: Arne Korsmo
Publisert på nett 21. februar 2020.
Opprinnelig publisert i Arkitektur N nr. 6 – 1985.
For å få full tilgang på alt innhold i Arkitektur N kan du kjøpe eller abonnere på papirutgaven.









