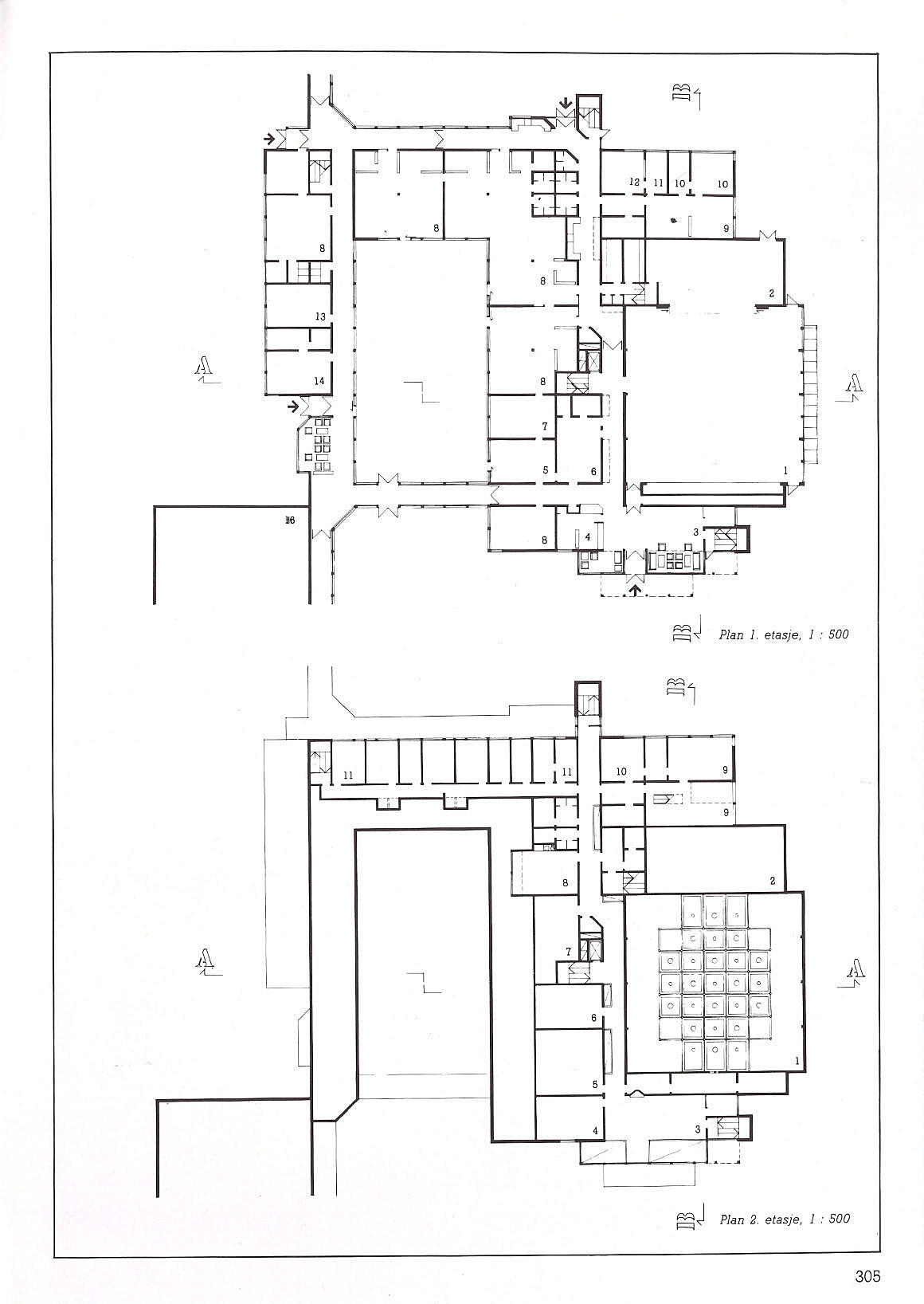
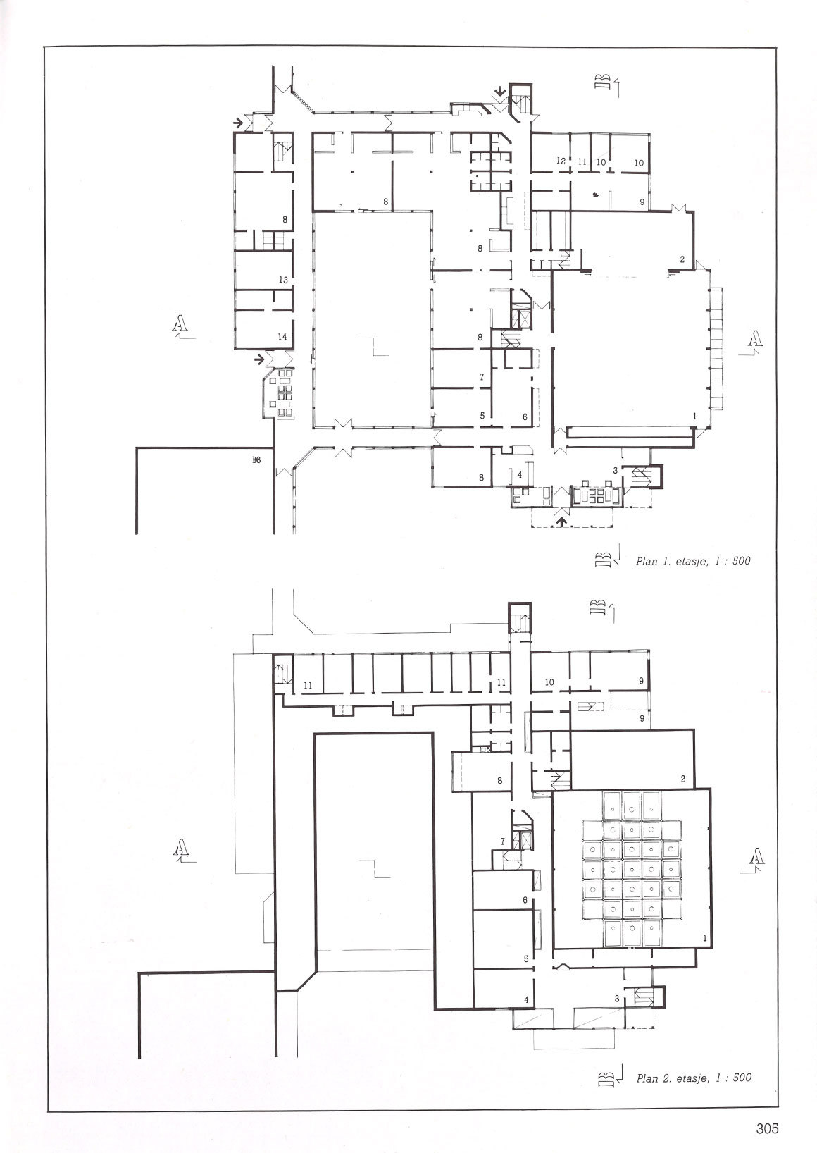
Aktivitetshus, Presteseter psykiatriske sykehus
Arkitekt: Joramo´s arkitektkontor
Kritikk ved Christopher Fürst.
Prosjektinformasjon
- Ferdigstilt: 1980
- Adresse: Presteseter 2840 Reinsvoll
- Arkitekt: Joramo´s arkitektkontor
- Medarbeidere: Gunnar Lange-Nielsen, Arne Lutnær, Knut Reiten. LARK: Leila Reinola.
Publisert på nett 30. januar 2020.
Opprinnelig publisert i Arkitektur N nr. 7 – 1980.
For å få full tilgang på alt innhold i Arkitektur N kan du kjøpe eller abonnere på papirutgaven.
4








