
Bolig Heløe/von der Lippe
Arkitekt:
Lund Hagem Arkitekter AS
- Ferdigstilt: 2000
- Adresse: Volvat Terrasse 20, Oslo, Norge
- Oppdragsgiver: Liv Heløe og Preben von der Lippe
- Arkitekt: Lund Hagem Arkitekter AS
- Medarbeidere: Svein Lund, sivilarkitekt MNAL, og Andreas Poulsson, arkitekt MNAL
- Konsulenter: Siv.ing. Terje Orlien
- Hovedentreprenør: Tømmermester Torstein Newth AS
- Brutto areal: 175 kvm + 75 kvm kjeller
- Fotokreditering: Svein Lund
Tomten er en utskilt hage i et etablert villastrøk i Oslo, ved enden av en blindvei. Mot vest er det utsikt mot Frognerparken, med Kolsåstoppen i det fjerne, og mot nord ligger Vestre gravlund. Omkringliggende bebyggelse er av svært varierende karakter, med innslag av både murverk og tre. Tomten er definert av en liten rygg (utfylling) mot gravlunden, med en rekke høyreiste bjerketrær. Boligen skulle være fleksibel og inkludere et separat studio.
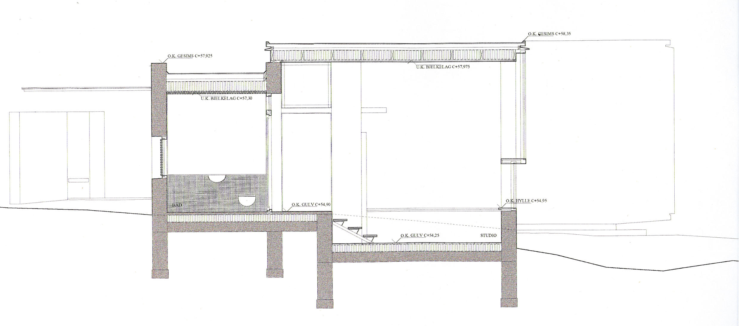
Bygget ble sett på som en presis avslutning av utbyggingen mot Vestre gravlund og Frognerparken. En lav mur favner både bolig og uteplasser og danner en hevet, beskyttet plattform. Boligen er gitt en klar todeling i volumutforming og materialbruk. Et lavt murvolum mot sør inneholder alle bi- og våtrom, mens oppholds- og soverommene er lagt i et lett trevolum mot vest, med store vinduer mot gravlunden og Frognerparken. I nord–sør-retning er huset delt i tre: studio – soverom – stue/opphold.
Adkomsten er fra øst, gjennom det tunge murvolumet mellom oppholdsdelen og soveavdelingen. Studioet er skilt ut som et frittliggende volum, kun bundet sammen med hovedhuset av taket. Adkomst til studio og bi-inngang til boligen er lagt til en utvendig gjennomgang.
Entreen har store vinduer mot et lite atrium og videre mot gravlunden. Netto romhøyde på 2,1 meter i denne sonen skaper intimitet. En lang gang krysser entreen og binder hele huset sammen. Stue og oppholdsrom ligger to trinn ned og har store dører mot uteplassen. Rommet er luftig med takhøyde på 3 meter. Stuen bryter gjennom den lave muren og krager ut over denne. Kjøkkenet ligger i murvolumet og har et høyt, smalt vindu som fanger morgensolen.
Tre soverom ligger på rekke mot gravlunden med store vinduer og generøs takhøyde. På motsatt side av gangen ligger toalett, hovedbad og barnebad. Gangen avsluttes i et hjemmekontor/lekerom med vinduer mot adkomsten.
Musikkstudioet ble i løpet av prosjekteringen utvidet til en utleiehybel, og inneholder nå i tillegg kjøkken, bad og sovehems. Endeveggen er vinklet for å følge nabogrensen og for å bedre akustikken. Den store takhøyden på 4 meter gir luftighet på tross av et lite gulvareal.
Materialene er i stor grad ubehandlet, og det er lagt vekt på en enkel materialpalett. Huset er utført i Leca, som er pusset med gjennomfarget puss innvendig og utvendig og deretter vasket og filset for å frilegge aggregat. Alle trevegger er kledd med liggende bjerkepanel. Gulvene i gangsone og bi-rom er i slipt og oljet betong. I stuen og på soverommene er det tregulv. De lave himlingene i entré og birom er utført i bjerkespiler, mens øvrige himlinger er utført i gipsplater malt mørkegrå. Alle dører og vinduer er malt mørkegrå og har glasslister i eik. Utvendig er panelet malt i samme gråfarge, og alle beslag er i sink. Enkelte elementer er fargesatt som en kontrast til den enkle materialpaletten.
Villa Heløe/von der Lippe
Architect: Lund Hagem Arkitekter AS
Set in part of an existing garden in an area of detached single-family houses, the brief for this villa called for flexibility and the inclusion of an acoustically insulated sound studio.
The house forms a clear edge along the adjoining church yard and the Vigeland Park, with a low wall protecting a raised exterior platform. The villa consists of a low masonry volume to the south, containing all service- and wet spaces, and a light timber volume to the west, with large windows facing the surrounding parks. A long corridor connects all the rooms.
The materials are simple and largely untreated: rendered lightweight concrete block, birchwood panelling and floors of polished, oiled concrete or timber.










