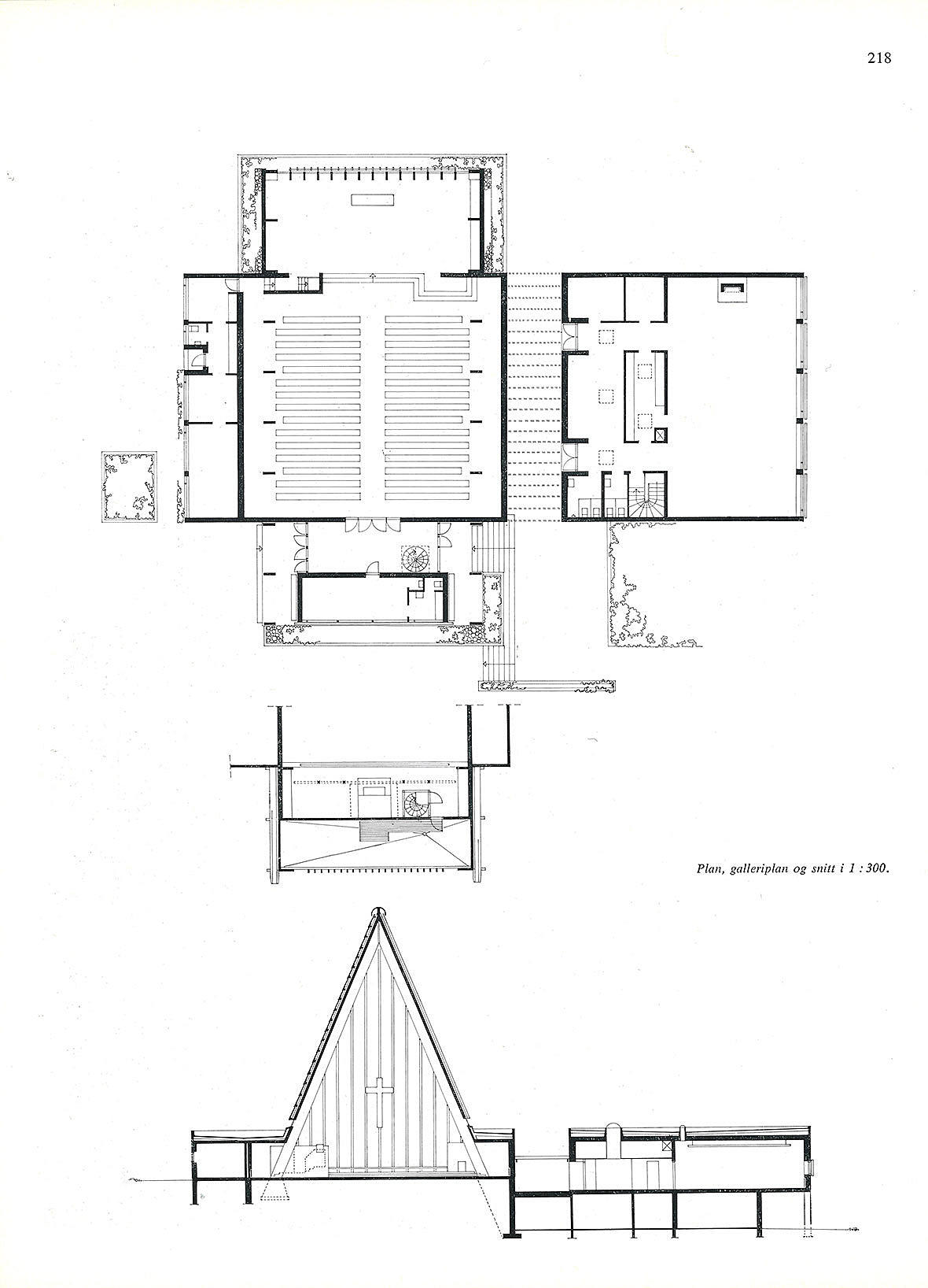
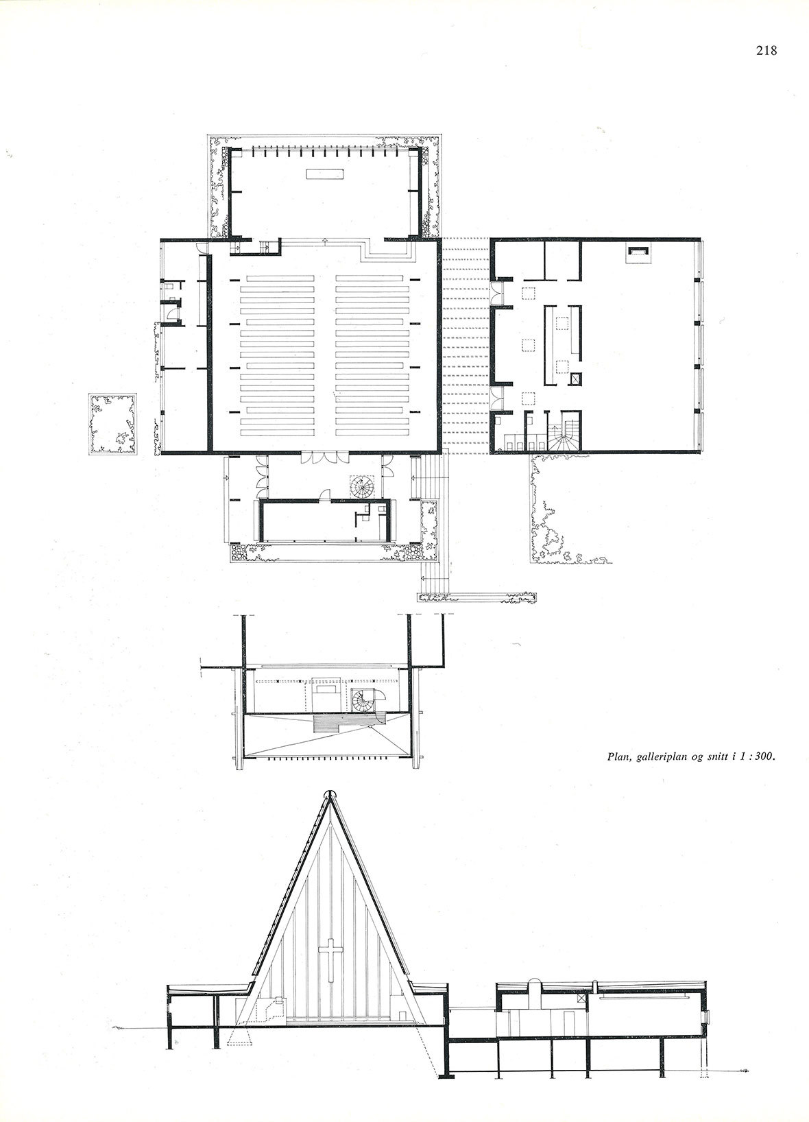
Brumunddal kirke
Arkitekt: Molle Cappelen, Per Cappelen, Sven Erik Lundby
Prosjektinformasjon
- Ferdigstilt: 1965
- Adresse: https://goo.gl/maps/pkg2BfNFJpEpJtV66
- Arkitekt: Molle Cappelen, Per Cappelen, Sven Erik Lundby
Publisert på nett 05. august 2019.
Opprinnelig publisert i Arkitektur N nr. 8 – 1966.
For å få full tilgang på alt innhold i Arkitektur N kan du kjøpe eller abonnere på papirutgaven.







