
Enebolig Middelborg/Sandberg
Arkitekt:
Knut Hjeltnes sivilarkitekter MNAL AS
- Ferdigstilt: 2002
- Adresse: Lachmannsvei 46 A, Oslo
- Oppdragsgiver: Jon Middelborg og Tonje Sandberg
- Arkitekt: Knut Hjeltnes sivilarkitekter MNAL AS
- Medarbeidere: Knut Hjeltnes AS sivilarkitekter MNAL v/ sivilark.MNAL Knut Hjeltnes. Arkitektmedarbeidere: sivilark.MNAL Hanne Bergan, sivilark. Karen Jansen, sivilark. Julia Yran, stud.arch. Claude Etienne-Tardy
- Konsulenter: Siv.ing. Terje Orlien
- Brutto areal: 292,2 kvm
- Fotokreditering: Knut Hjeltnes
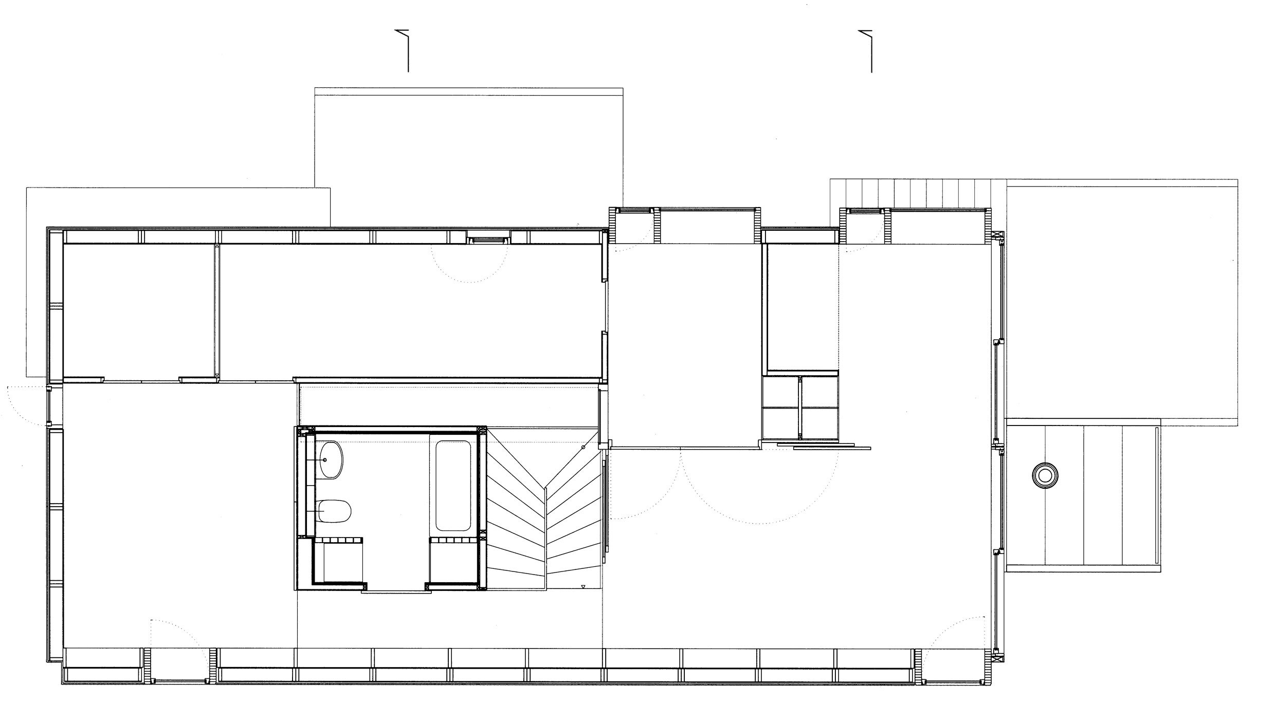
Husets hovedkropp er et enkelt volum som «flyter» over bakken og grunnmuren i bakkant. Mot vest slippes huset ned til bakken for å romme entreen. Som overgangssoner mellom huset og uterommene er det tre betongbalkonger. Gjennom denne artikulasjonen av bygningens forhold til bakken søker vi å forene to tilsynelatende motstridende utfordringer i situasjonen; å frigjøre bygningskroppen fra det karakteristiske vare, tynne, bølgende gressteppet (som nærmest tegner konturen av granitten under) og å skape god kontakt ut til hagen.
Plan- og bygningslovens nye og strengere krav til isolasjon har medført økt vegg- og dekketykkelser, noe som gjør det vanskelig å gi trehus et lett uttrykk. Dette har inspirert til å betrakte huset som en sammenstilling av ulike volumer. Volumene er i enkleste utførelse bare tykke vegg-, gulv- eller takskiver, i andre tilfeller er de veggvolumer med integrert oppbevaring eller sågar hele rom. Mellom disse volumene oppstår husets mer funksjonsubestemte rom, husets åpninger mellom etasjene samt husets åpninger mot utsikten og himmelen. Dette «mellomrommet» kan ved hjelp av ulike dørtyper (skyvedører, pivothengslede dører, karmdører) deles i spesifikke, klart avgrensede rom. Man kan med andre ord velge om huset skal framstå med tradisjonelle lukkede rom eller som et åpent romlig «landskap».
Vinduer, mobile romlige skiller (dvs. dører som vanligvis er åpne) og dekker er utført i farger, mens øvrige volumer er utført i bjørkefiner. Dekkene har slitelag av heltre eik som stedvis frigjør seg fra dekkenes avgrensning for å bli trapper eller brystninger. Husets utvendige værhud av jernvitriolbehandlet gran, sølvmalt kryssfiner og sink danner et omtrentlig avtrykk av den romlige sammenhengen innenfor.
Husets konstruksjon er visuelt undertrykt for å la det romlige spillet framtre. Dekkene er rammekonstruksjoner av limtre. Disse rammene bæres av de ulike volumene, delvis med sideveis forskyvning av kreftene. Ytterveggene ble levert prefabrikkert i bærbare dimensjoner (1,2 m).
Balkongene er utført i prefabrikkerte betongelementer, som magasinerer varmen, slik at sommerkveldene kan strekkes. De mest solutsatte vinduene er levert med avansert glass for å redusere uønsket soloppvarming. Mot nord virker oppbevaringen som tilleggsisolasjon. Huset varmes opp ved hjelp av varmepumpe.
Villa Middelborg/Sandberg
Architect: Knut Hjeltnes AS Sivilarkitekter
The main volume of the house «floats» above site, with only the entrance touching the ground and three concrete balconies forming a transition form inside to outside spaces. The building tries to join two
seemingly contradictive challenges posed by the situation: separating the house from the fragile grass layer, but still connecting to the garden.
New insulation standards have made it more difficult to keep give timber structures a light expression, so we have regarded the house as a collection of different volumes, separated by undefined
opening spaces. Using a system of sliding and hinged or pivoting doors, the house can be either a sequence of traditional closed spaces or an open continuous «landscape».
Windows and mobile divisions are in colour, the remaining volumes in birch veneer with oak-covered floors. The exterior cladding is spruce treated with iron vitriol, silver painted plywood and zinc. The laminated timber and concrete structure is underemphasised in order to highlight the play of spaces.














