
Fiskebruene Myrbærholmen
Nasjonale turistveger / Fiskebruene Myrbærholmen, Atlanterhavsvegen
Arkitekt:
Manthey Kula AS
- Ferdigstilt: 2010
- Adresse: Hulvågen, Eide
- Oppdragsgiver: Nasjonale Turistveger
- Arkitekt: Manthey Kula AS
- Medarbeidere: Beate Hølmebakk og Per Tamsen, begge sivilark.
- Konsulenter: Norconsult AS (RIB)
- Brutto areal: 435 kvm
- Byggekostnader: 10,6 mill. NOK eks. mva
- Tilleggsopplysninger: Prosjektet har fått Innovasjonsprisens hedrende omtale for universell utforming
- Fotokreditering: manthey kula, Jarle Wæhler
Den gode fiskeplassen ved Myrbærholmen, like ved den velkjente Storseisundbroen langs Atlanterhavsvegen, har vært mye brukt til tross for dårlige adkomstforhold og at det har vært risikofylt å oppholde seg i veibanen. Fjellskjæringen, veikanten og brobanen dannet et godt utgangspunkt for utvikling av plassen som Nasjonalt turistvegprosjekt.
Prosjektet er utviklet i to omganger. Først ble parkeringen mot fjellveggen utvidet, og noen år senere ble fiskebruene etablert på begge sider av veibroen. Tiltaket var et samarbeid mellom Statens vegvesen og flere kommuner.
Situasjon
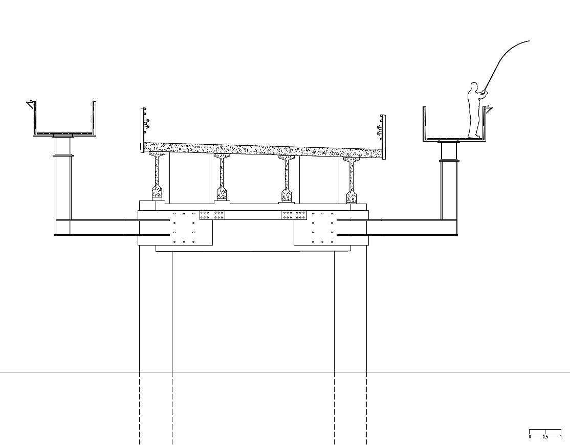
De to utkragete gangbanene er utformet som to store sirkelsegmenter med ulik radius. Intensjonen er at fiskebruene skal bidra til opplevelsen av lange ubrutte linjer og på den måten forsterke veganleggets karakter. Ved å frigjøre gangbanene fra brobanen ble det mulig å føre dem inn på terreng over de eksisterende landkarene og dermed etablere en kontinuerlig bevegelse langs hele konstruksjonen. Mellomrommet mellom veien og de nye gangbanene er også en sikringssone for å unngå at en evt. påkjørsel på veirekkverket påvirker de utkragete konstruksjonene.
Den eksisterende brobanen heller i lengderetningen og vrir seg i tverretningen. De to nye gangbanene er horisontale, slik at forholdet mellom de nye gangbanene og den eksisterende broen varierer, mens forholdet mellom gangbanene og vannflaten er konstant i hele broens lengde.
Konstruksjon og materialbruk
Fiskebroene er rene prefabrikkerte stålkonstruksjoner. Gangbanene består av elementer som ligger an på kraftige stålbjelker. Bjelkene spenner mellom konsoller som krager ut fra den eksisterende broens pilarer og landkar.
Gangbaneelementene består av kontinuerlige stålrammer med gulv og sider av gitterrister. Adkomstrampene, trappene og snuplassen for endene av den ene gangbanen er utformet i platestål. I disse elementene er det rekkverket som tar spenn og utkragninger. Oppheng for livbøyer er integrert i rekkverksutformingen.
Mot parkeringen danner landingspunktene i betong terskler som holder grusfyllingen fra parkeringsplassen og adkomststiene på plass.
Fiskebruene er universelt tilgjengelige. Rekkverkenes kontrastfarge er midtstripegul og fiskeplassene er utstyrt med et særskilt rekkverk som letter snørefiske fra rullestol.
Fishing bridge, Myrbærholmen, Atlanterhavsvegen – the Atlantic Coast Road
Architects: manthey kula
To make the road bridge safe for people taking advantage of the excellent fishing, two pedestrian bridges were added to the side of the existing bridge structure. The new bridges are attached to the existing as prefabricated steel cantilevers, structurally separate to allow separate landing points and to avoid damage in the event of a road bridge collision. The bridges are universally accessible.












