
Arkitekt:
Lund+Slaatto Arkitekter AS
Bruken av tegl som fasademateriale er et av flere vellykkede grep som er med på å gi Munch Brygge en særegen arkitektonisk karakter.
- Ferdigstilt: 2019
- Adresse: Operagata 1-51, Oslo
- Oppdragsgiver: Stor-Oslo Eiendom AS
- Arkitekt: Lund+Slaatto Arkitekter AS
- Medarbeidere: Espen Pedersen, arkitekt MNAL (arkitekturfaglig leder); Inge Ormhaug, sivilarkitekt MNAL; Jan Kristian Borgen, arkitekt; Quique Bayarri Sabariego, arkitekt; Ole Thomas Rødland, sivilarkitekt; Johannes Michael Bak, arkitekt; Lise Marie Evertsen, sivilarkitekt; Hans Marius Teigar Jacobsen, arkitekt; Ingrid Brunborg Pay, arkitekt; Marit Haugen Stabell, sivilarkitekt MNAL, Ida Øyen Grave, arkitekt, Tone Thorbjørnsen, arch.stud.; Vidar Ådnanes, arch.studgull
- Landskapsarkitekt: Gullik Gulliksen AS
- Landskapsarkitekt medarbeidere: Gullik Gulliksen AS v/ Heidi Borgersen, Jan Bernigeroth, Johanna Göranson, alle landskapsark. MNLA; Marius Nytrøen, produktingeniør
- Konsulenter: Seim & Hultgreen AS (RIB), ÅF Engineering AS (RIE, RIV), Fokus Rådgivning (RIBr), Rambøll Norge AS (RIByfy), Ingeniørplan AS (RIB Tegl), Rieber Prosjekt AS (RIAku), Multicinsult AS (RIG, RIM), Norconsult AS (RIVa)
- Brutto areal: 24 500 kvm
- Totalentreprenør: BundeBygg AS
- Kostnader: total entreprisekost er 637,6 mill. NOK eks. mva. I tillegg kommer infrastrukturbidrag på 82,6 mill. NOK (infrastrukturbidraget er ikke mva-pålagt)
- Fotokreditering: Lund+Slaatto Arkitekter; Bård Gundersen / Octocopterfilm; Carsten Müller, Zovenfra AS
- Miljøopplysninger
- Beregnet energiforbruk: bolig: 75-80 kWh/kvm pr. år; barnehage - 68 kWh/kvm pr. år; næring – 127 kWh/kvm pr. år
- Energikilder: fjernvarme
- Ventilasjon: mekanisk
- Byggekostnad: 25 504 NOK eks. mva pr. kvm BTA
- Gjennomsnittlig U-verdi: tak: 0,13 W/kvmK; yttervegg over terreng: 0,15 W/kvmK; gulv mot kjeller: 0,12 W/kvmK; vinduer/dører: 0,75 W/kvmK
- Materialbruk: 42 prosent reduksjon av CO2-avtrykket i forhold til referansebygg; lett teglstein, tilnærmet 100 prosent resirkulert stål, lavkarbon-betong i klasse B, mineralullprodukter av glass, og trestendere i stedet for stål.
- Entrepriseform: samspillsentreprise
Av Bente Kleven
Skipsreder, kullgrossist, gårdeier og sagbrukseier Hans Arnt Hartvig Paulsen, på folkemunne kalt Køla-Pålsen, kjøpte i desember 1875 en 1,2 mål stor tomt øst for Akerselvas utløp i Bispevika. Paulsen utvidet med tiden sin eiendomsportefølje, og etter hvert vokste det frem et viktig anlegg for eksport av trelast og import av kull.
Dette området mellom Akerselvallmenningen i vest og Stasjonsallmenningen og Bispevika i øst ble dermed hetende Paulsenkaia, og det er jo egentlig litt synd at utbygger ikke valgte å bruke dette navnet på det nye bygningsanlegget som sto ferdig våren 2019.
Munch Brygge fremstår imidlertid litt mer fornemt, og det blir opplagt lettere for kommende generasjoner å lokalisere det nye bygningsanlegget, som er nærmeste nabo til det nye Munch-museet. Gangstrøket som passerer gjennom anlegget har derimot fått navnet Køla-Pålsens gatetun.
Prosjektets rammer.
I 2016 kjøpte byggherren, Stor-Oslo Eiendom, den ferdigregulerte og meget attraktive tomta av HAV Eiendom (havnevesenets eiendomselskap). På grunnlag av samtaler med tre arkitektkontorer, engasjerte utbygger arkitektfirmaet Lund+Slaatto (LSA) til prosjektering i alle faser. Etter gjennomført forprosjekt, ble entreprenørselskapet BundeBygg engasjert av byggherren i en samspillsentreprise, der arkitekt og et team av rådgivere for ulike tekniske fag ble kontraktsmessig tiltransportert entreprenøren, som hadde ansvar for detaljprosjektering og bygging.
“Arkitektenes foreslåtte geometri har utfordret byggegrensene, men gir en kvalitetsheving.”
Entrepriseformen ble i dette tilfellet basert på at kontraktspartene, på grunnlag av forprosjektet, forhandlet seg frem til en omforent målsum for prosjekterings- og byggekostnader basert på avtalte kvaliteter. Partene forholdt seg til en «åpen bok», der det på en smidig måte var mulig å gjøre endringer i løpet av prosjekterings- og byggeprosessen, for derved å kunne kalibrere entreprisekostnadens sluttsum.
Reguleringsplanen, som omfattet den aktuelle tomta, ga muligheter for etablering av boliger fra 2. til 7. etasje i kvartalets randbebyggelse, samt forretninger, spisesteder og en barnehage i kvartalets todelte base på gateplan. Parkering for bil og sykkel, sportsboder og vareadkomst til forretningsarealer var forutsatt løst i en sammenhengende kjelleretasje. Planens totale arealramme (ekskl. kjellerarealer) var 19 500 kvm BRA (NS 3940).
Planen inneholdt blant annet detaljerte bestemmelser om lokalisering og utforming av definerte bygningsvolum; maksimum kotehøyde, beliggenhet og minimum bredde på tverrgående gatetun, tillatte utkragninger over omkringliggende og interne byrom, samt etablering av minimums høydedefinerte åpninger i kvartalets randbebyggelse. I tillegg til bestemmelser om kvaliteter på ulike funksjoner.
En lang prosess.
Det vil alltid representere en stor utfordring for arkitekter å utforske og prosjektere et komplekst bygningsanlegg, slik at det tilfredsstiller alle aktuelle rammebetingelser som en ferdig detaljert reguleringsplan representerer. Den attraktive eiendommen ble sannsynligvis kjøpt for en betydelig sum og arkitektenes oppgave var å utforske en helhetlig løsning, som oppfylte reguleringsplanens maksimale arealpotensial.
Ofte vil et forprosjekt være avhengig av dispensasjoner fra en eller flere reguleringsbestemmelser, før en rammetillatelse kan innvilges av kommunens byggesaksenhet. Dette kan igjen bety stor usikkerhet for fremdriften av en byggesak i forhold til uforutsigbare tidsrammer for saksbehandling. Modige byggherrer, med is i magen, som setter pris på (i dobbel forstand) de kvaliteter det aktuelle forprosjektet representerer, vil likevel kunne bifalle en slik prosess.
For ikke å tape tid ble Munch Brygge oppdelt i to separate byggesaker: en for utgravning, og en for fundamentering til og med bebyggelse over. Etter overlevert rammesøknad for Munch Brygge som, ikke overaskende, inkluderte søknad om en rekke dispensasjoner fra ulike reguleringsbestemmelser, fulgte en intens periode for utbygger og arkitekt med krav om ytterligere prosjektjusteringer og dokumentasjon. Etter at Rådet for Byarkitektur hadde uttalt seg i positive ordelag om prosjektet, forelå rammetillatelsen 10 måneder etter at første søknad ble oversendt. Normal behandlingstid for en rammesøknad er 12 uker.
En kvalitetsheving.
Arkitektene for Munch Brygge har gjort noen svært viktige konklusjoner for justert lokalisering og formgivning i forhold til reguleringens bestemmelser for utforming av kvartalet. Tomteområdets omsluttende byggelinjer defineres på reguleringskartet parallelt med Akerselva i vest, med den gamle kaikanten mot Bispevika i øst, og med Operagata i nord. Reguleringen forutsetter også en tverrgående gangpassasje/gatetun gjennom det aktuelle kvartalet, parallell med gatestrukturen i nord.
Arkitektene foreslo å dreie den tverrgående gangpassasjen i forhold til hvordan den er definert på plankartet. Med dette grepet er det etablert en flott diagonal siktakse fra vestre del av Operagata over Akerselva mot fjordbassenget i Bispevika, med Ekebergåsen som fondmotiv. Det diagonale gatetunet genererer en ytterligere skrågeometri, et slags DNA, i kvartalets ulike bygningsvolum og fasadeliv, for å optimalisere boenheters tilgang på dagslys, sol og utsikt mot fjorden. Storkvartalets to gårdsrom er hevet en etasje over gateplan, på en base for randbebyggelsen. To brede slisser i kvartalsbebyggelsens sørvestre og nordøstre hjørne gir bedre dagslys- og utsiktsforhold fra de to gårdshagene og fra tilliggende boligrom, enn de fire minimum 2-etasjes høye åpningene som bestemmelsene angir.
Arkitektenes foreslåtte geometri har utfordret byggegrensene, men gir samtidig en kvalitetsheving for både siktlinjer, bevegelsesmønster og ikke minst boligkvalitet. I tillegg medfører den omsøkte og gjennomførte løsningen en variasjon i bevegelse av fasadelivet som beriker opplevelsen av bygningsvolumene mot omkringliggende parkmessige og sjønære byrom.
De private uteplassene for leilighetene henvendt mot Akerselva og Bispevika er utformet som skråstilte loggiaer, som sammen med bakenforliggende karnapp fremstår som en integrert del av bygningskroppene. Dette formgivningsgrepet sikrer beboerne romslige, klimaskjermede uterom, uten at bygningskroppene preges av altfor dype utenpåhengte balkonger.
“Bygningsanlegget fremstår som varmt og taktilt mellom sine gråhvite, metallkledde naboer.”
Et hjørnevindu mot loggia gir samtidig gjennomgående leiligheter med oppholdsrom mot sjøfront, utsikt og daglys fra to retninger. Den valgte geometrien på karnappvolum og loggiaer optimaliserer også tilgangen på formiddags- og ettermiddagssol på de private uteplassene.
Teglfasadene.
Det kanskje mest oppsiktsvekkende ved Munch Brygge er den gjennomgående bruken av en herlig varm terrakottarød tegl som kledning av klimaveggene på både utadvendte og innadvendte fasader. Bygningsanlegget fremstår som varmt og taktilt mellom sine gråhvite, metallkledde naboer. LSA har tidligere bevist sin arkitekturfaglige virtuositet og detaljeringsevne når det gjelder bruk av teglkledning av yttervegger gjennom Ydalir Hotell i Stavanger (Arkitektur 02 /2019), og nye røde teglprosjekter er på gang på Fyrstikkfabrikken og på Sæter i Oslo, samt ved Mesnaelva på Lillehammer.
Allværsjakken til Munch Brygge vil ha svært lang holdbarhet, da den er utført som murte teglskift. Den trenger konstruktiv bistand i form av synlige galvaniserte og mattlakkerte stålvinkler under brystninger på loggiaer og over store vinduspartier, som er for brede til at man bare kan armere teglskiftene som spenner over. Stålprofiler under loggiabrystninger og over brede vindusfelt, samt lette platehimlinger under balkongdekker, er synliggjort og fargesatt med en forsiktig kontrast i forhold til murverket. Materialbruken ute signaliserer en ledig arkitektonisk ærlighet og søker å åpenbare teglen som et kledningsmateriale.
Teglkledningen på Munch Brygge får likevel bygningsanlegget til å fremstå med en visuell tyngde og soliditet, fordi den føres ned til bakkeplan i partier mellom forretningslokaler og boliginnganger, og fordi alle vertikale flater på bygningskroppene er kledd med samme type tegl. Ved inngangspartier til boliger har teglen fått ulike relieffmønster, som både ses og sanses av de som beveger seg tett på bygningsanlegget.
Teglsteinen, som har en gunstig pris og en liten og klimavennlig dybde, er produsert i Belgia. Produksjonen av en standard type tegl fra den aktuelle teglleverandøren ble modifisert etter ønsker og innspill fra arkitektene i en fellesworkshop. Etter muring av flere prøvefelt, valgte arkitektene å bruke en rødfarget mørtel i fugene. Fugefargen er et svært viktig bidrag til hvordan fargesettingen av komplette murflater oppleves fra byrommene rundt.
Farge- og materialbruk.
Over forretnings- og serveringslokalene mot vest har arkitektene vakkert detaljert en glassoverdekket baldakin, i form av en trapesformet ribbekonstruksjon i stål, som visuelt krager ut fra fasadelivet. De primære stålbjelkene er innspent i undersiden av betongdekket til boligetasjen over, og må av kuldebrotekniske årsaker skjules bak en isolert himlingskonstruksjon på varm side av klimaveggen.
Med samme mønjefarge på konstruktivt stål, som på beslag på gesimser og på stålbenker, fremstår den utvendige fargebruken godt avstemt i forhold til de terrakottarøde veggene.
Av miljømessige grunner har jeg ikke så stor sans for kledning av fasadefelt med komposittplater, der et tynt sjikt av finert treverk under et gjennomsiktig tynt membransjikt gir den synlige overflaten. Denne kledningstypen er benyttet ved inngangspartier og som kledning av tette felt mellom vinduer.
Vindusprofilene i lakkert aluminium i boligetasjene, med profilløse limte glass i hjørnene, ivaretar maksimalt utsyn og lysinnslipp. Disse måtte importeres fra Danmark, fordi ingen norske leverandører kunne levere et ferdiglimt glasshjørne som ikke var 90 grader.
Boligene.
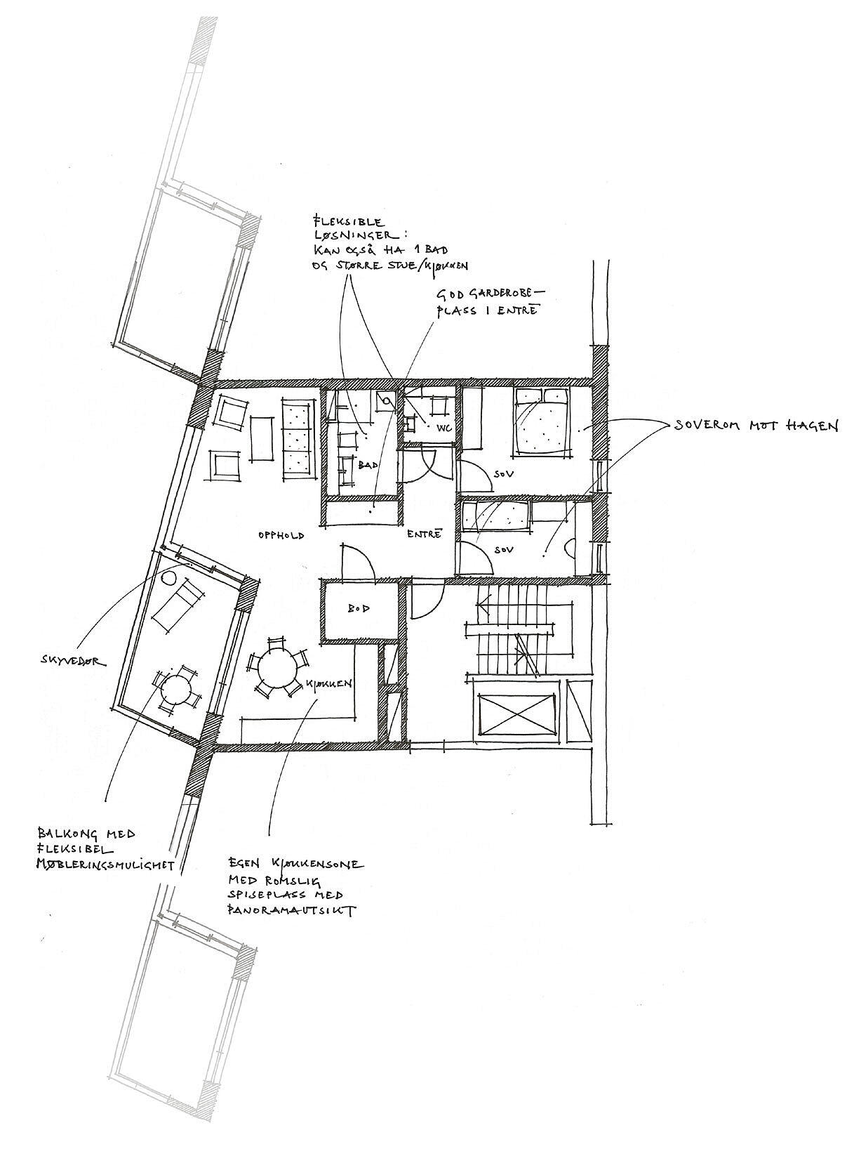
Boligene er organisert i to vinkelformede og to rektangulære bygningsvolum over «basen» som utgjør 1.etasje og som inneholder serveringsfunksjoner, butikker, varemottak og en barnehage.
Boliganlegget inneholder totalt åtte vertikale kommunikasjonsrom med trapper og heiser med direkte adkomst fra de to fjordvendte allmenningene. Kommunikasjonsrommene fremstår tydelige mellom gateplanets ulike næringslokaler. Trappekonstruksjon og bærende betongvegger kunne imidlertid vært røffere eksponert i bedre samklang med den utvendige teglen. Istedenfor er det valgt vevd vinyl på gulv og i trapp og malte overflater på vegger.
Den nordre gårdshagen vil fungere som barnehagens uteområde på dagtid, når denne er ferdig prosjektert, bygget og åpnet av Oslo kommune/Omsorgsbygg.
Barnehagens baseareal under nordre gårdsrom har en slags revehiaktig hovedadkomst via en innvendig korridor fra det ellers så inviterende gatetunet, samt ditto adkomst via en boligtrapp og -heis til eget uteområde på gårdsromsplanet over. Barnehagens adkomster virker dessverre ikke spesielt lovende.
Generelt må leiligheter som har tilgang til en felles trappekjerne ha vindusåpninger eller balkonger som kan nås av en stigebil, for å tilfredsstille brannforskriftenes krav om to uavhengige rømningsveier. Det betyr at i et prosjekt som Munch Brygge, vil etablering av ensidige leiligheter med fasade mot gårdsrom måtte lokaliseres mot en adkomstkorridor med to rømningstrapper. Bygningsvolumet mot Operagata i nord inneholder prosjektets eneste 6-spenner der alle de seks leilighetene pr. etasje har tilgang til to trapperom. 18 sydvendte, ensidige småleiligheter er lokalisert der det innvendige kvartalsrommet er på sitt bredeste.
De gjennomgående leilighetene med størst fasadelengde, som det er flest av, tilbyr den beste boligkvaliteten. Jeg var så heldig å få tilgang til en av de gjennomgående toppleilighetene, med fantastisk utsikt over fjordbassenget og ikke minst til Operaens øvingslokaler for ballettdansere i toppetasjen rett over Akerselva.
Ensidige småleiligheter, med glasskjermer foran private uteplasser på gårdsromsplan, gir naturlig nok en annen boligkvalitet. Når i tillegg barnehagens uteområde beslaglegger den ikke altfor romslige nordre delen av gårdsrommet på dagtid, er det supert at beboerne har tilgang til en praktfull felles takaltan/-terrasse. Taklandskapet på de ulike bygningsvolumene er formgitt på en vakker måte med flere mindre oppholdssoner mellom ulike pryd- og nyttevekster og sedumflater. Manus- og regiansvar for landskapsarbeidene i gårdsrom og takhager, samt anleggets fellesareal på bakkeplan har ligget hos landskapsarkitektene hos Gullik Gulliksen.
Noen beboere vil derimot fryde seg over lekende barn, og barnehagens uteareal vil uansett fungere som et felles oppholdsareal på ettermiddag og kveld for beboerne med og uten barn. Jeg synes likevel det er litt synd at barnehagens uteareal ikke fikk en utvendig åpen trappeforbindelse/amfi i kvartalets åpning mot Stasjonsallmenningen, slik det var på tidlige planer. Den tilliggende allmenningen i øst ville dermed fått en forbindelse direkte til det barnevennlige utearealet i Munch Brygge.
“Det urbane Oslo trenger langt flere nye bygningsanlegg med en ytterhud av terrakottarød tegl.”
Mer tegl i byrommene.
Min konklusjon er at det nylig ferdigstilte bygningsanlegget Munch Brygge beviser et utrolig vellykket samarbeid mellom byggherre, arkitekt, tekniske konsulenter og en dyktig entreprenør.
Munch Brygge er blitt et bykvartal med en særegen arkitektonisk karakter i det transformerte havneområdet og har allerede blitt hedret med OAFs arkitekturpris. Anlegget henter inspirasjon fra den gamle ærverdige Tollboden lenger vest i Bjørvika. Dessuten er det en slags ode til alle teglverkene som på 1800-tallet ble etablert oppover langs Akerselva.
Jeg mener generelt at det urbane Oslo trenger langt flere nye bygningsanlegg med en ytterhud av terrakottarød tegl. Tegl som fasademateriale holder seg vakkert uten vedlikehold i mangfoldige generasjoner. Selv om tegl er relativt energikrevende å fremstille, vil den utrolige holdbarheten forsvare det som et bærekraftig valg.
Jeg prøver å mane frem opplevelsen av byrommene dersom kvartalet rett nord for Munch Brygge, samt de to kvartalene øst for nye Deichmann, også hadde vært kledd med tegl. Da kunne de hvite og grå inviterende kulturbyggene, Den norske Opera, Munchmuseeet og Deichmann, virkelig fremstått i kontrast til nabobebyggelsen, og de teglkledde kvartalene kunne berike byrommene med en varm farge og en imøtekommende taktilitet.
Munch Brygge Apartments, Oslo
Architect: Lund+Slaatto Arkitekter
Review by Bente Kleven
The use of brick in the facades is one of many successful factors that give Munch Brygge a distinct architectural character. The project is the result of outstanding collaboration, and draws inspiration from the venerable Tollboden further west in Bjørvika as well as all the brick works along 19th century Akerselva.

















