Rådhus i Bergen
Arkitekt: Erling Viksjø
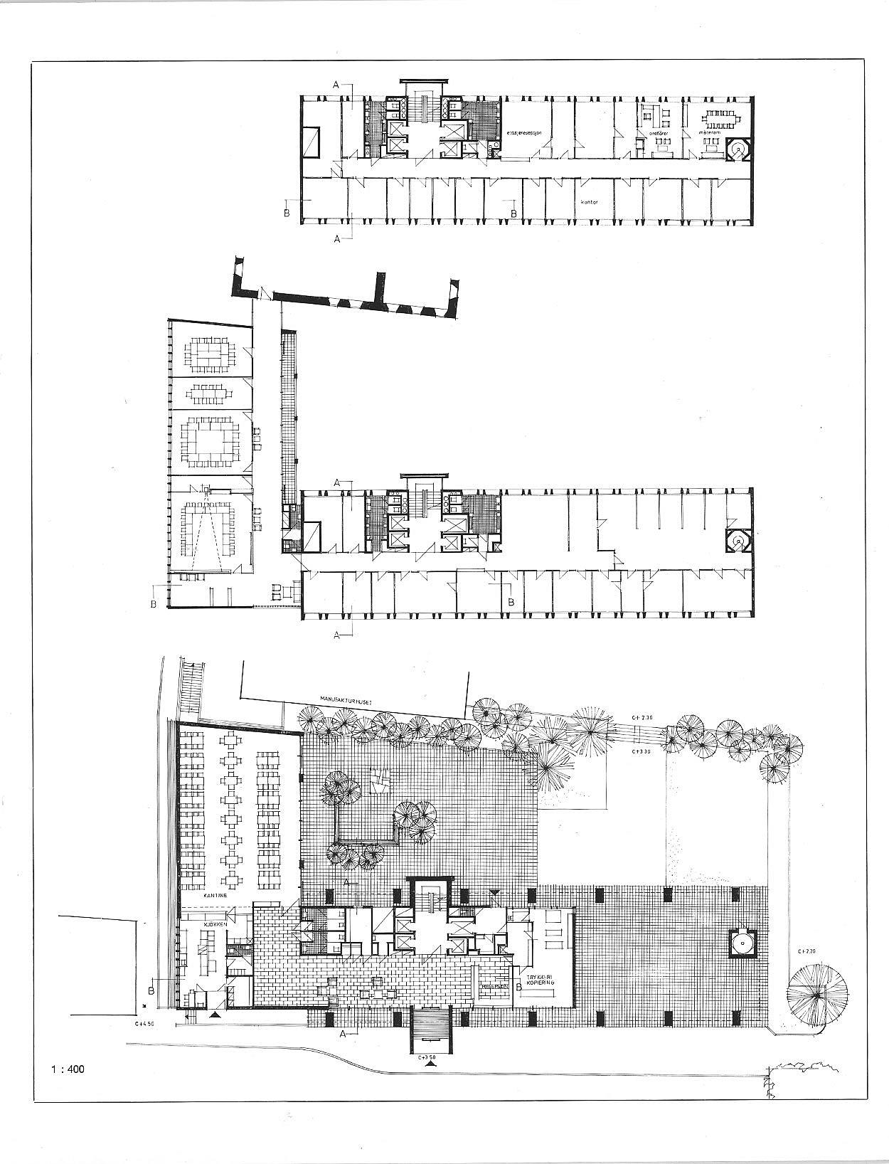
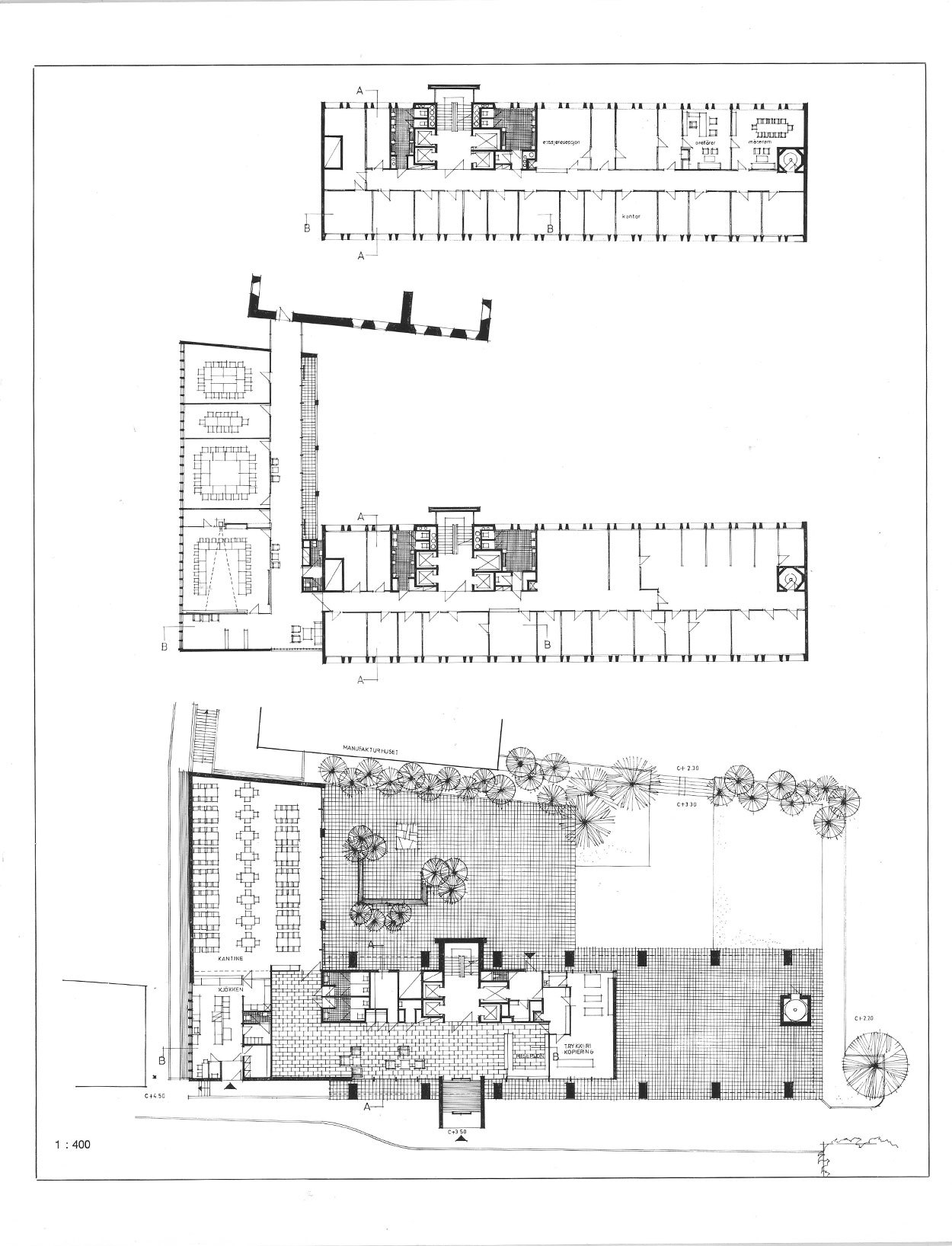
Rådhuset er tegnet av arkitekt Erling Viksjø i etter at han vant arkitektkonkurransen allerede i 1953. Byggearbeidene på høyblokken startet i 1971, og bygningen sto ferdig i 1974. Som mange av Viksjøs byggverk, og som det første i Bergen, ble rådhuset reist i naturbetong.
Prosjektinformasjon
- Ferdigstilt: 1974
- Adresse: Rådhusgaten 10, 5014 Bergen
- Arkitekt: Erling Viksjø
- Medarbeidere: Herman Rolfsen. Medarbeidere i byggeperioden: Inger Sejersted Bødtker. montaktmann i Bergen. Kjell H. Irgens
Publisert på nett 27. juni 2018.
Opprinnelig publisert i Arkitektur N nr. 2 – 1975.
For å få full tilgang på alt innhold i Arkitektur N kan du kjøpe eller abonnere på papirutgaven.
3






