Skippergata 12
Arkitekt:
MAD Arkitekter
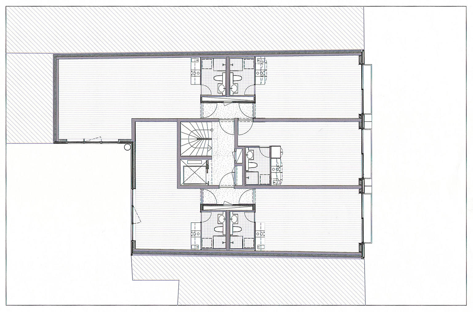
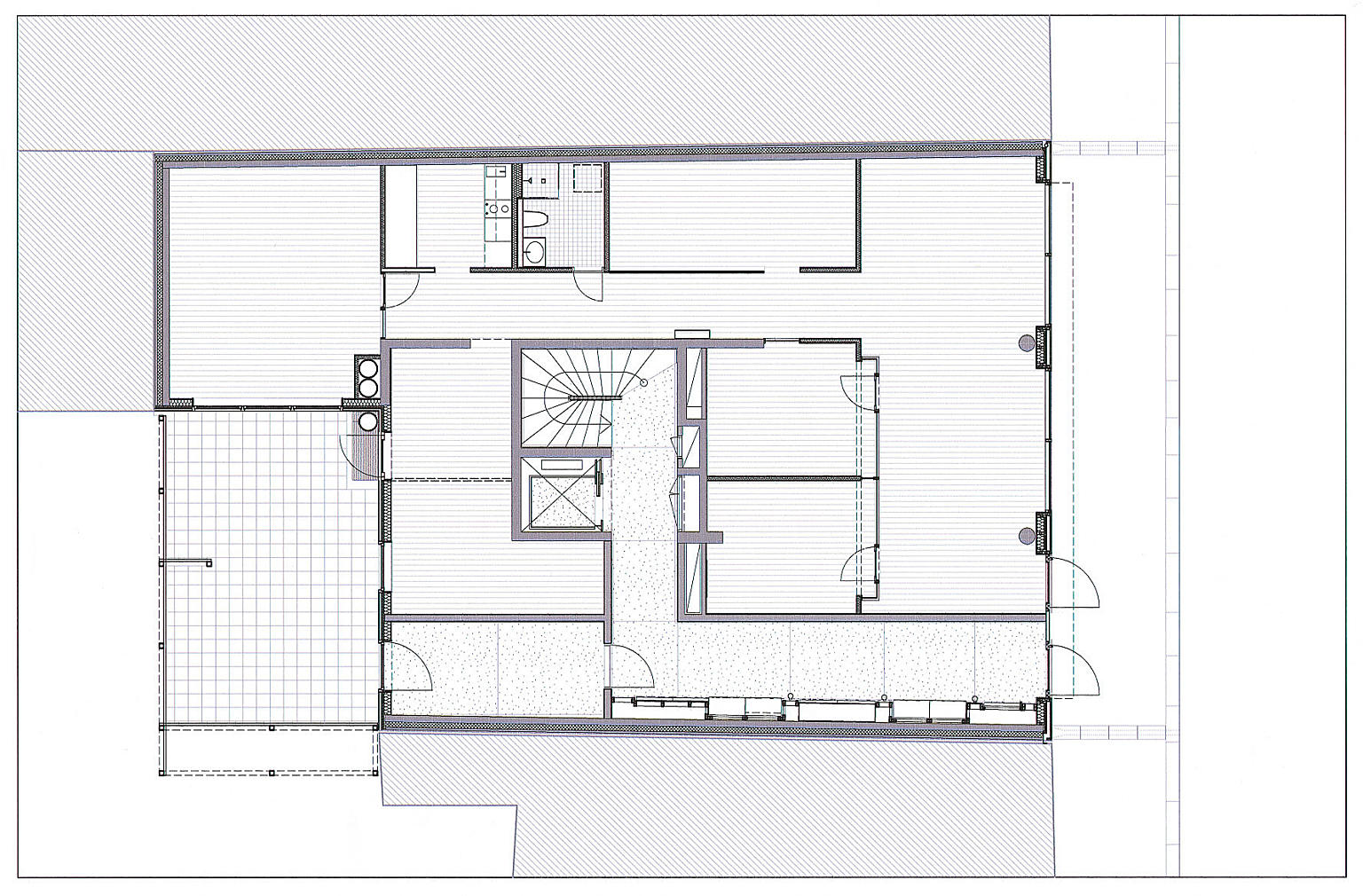
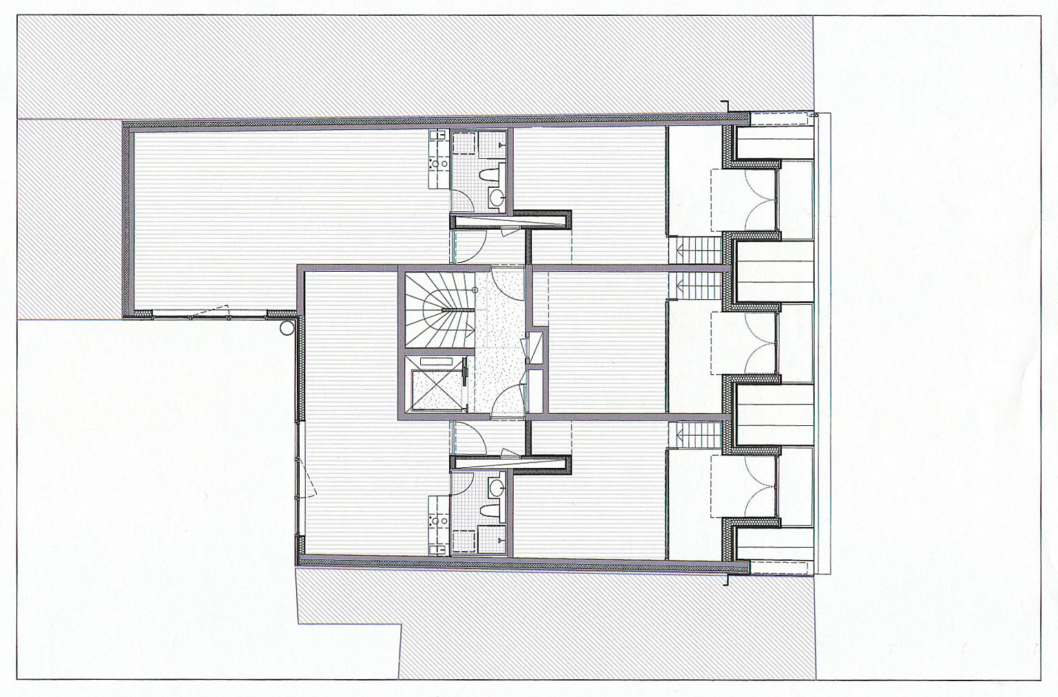
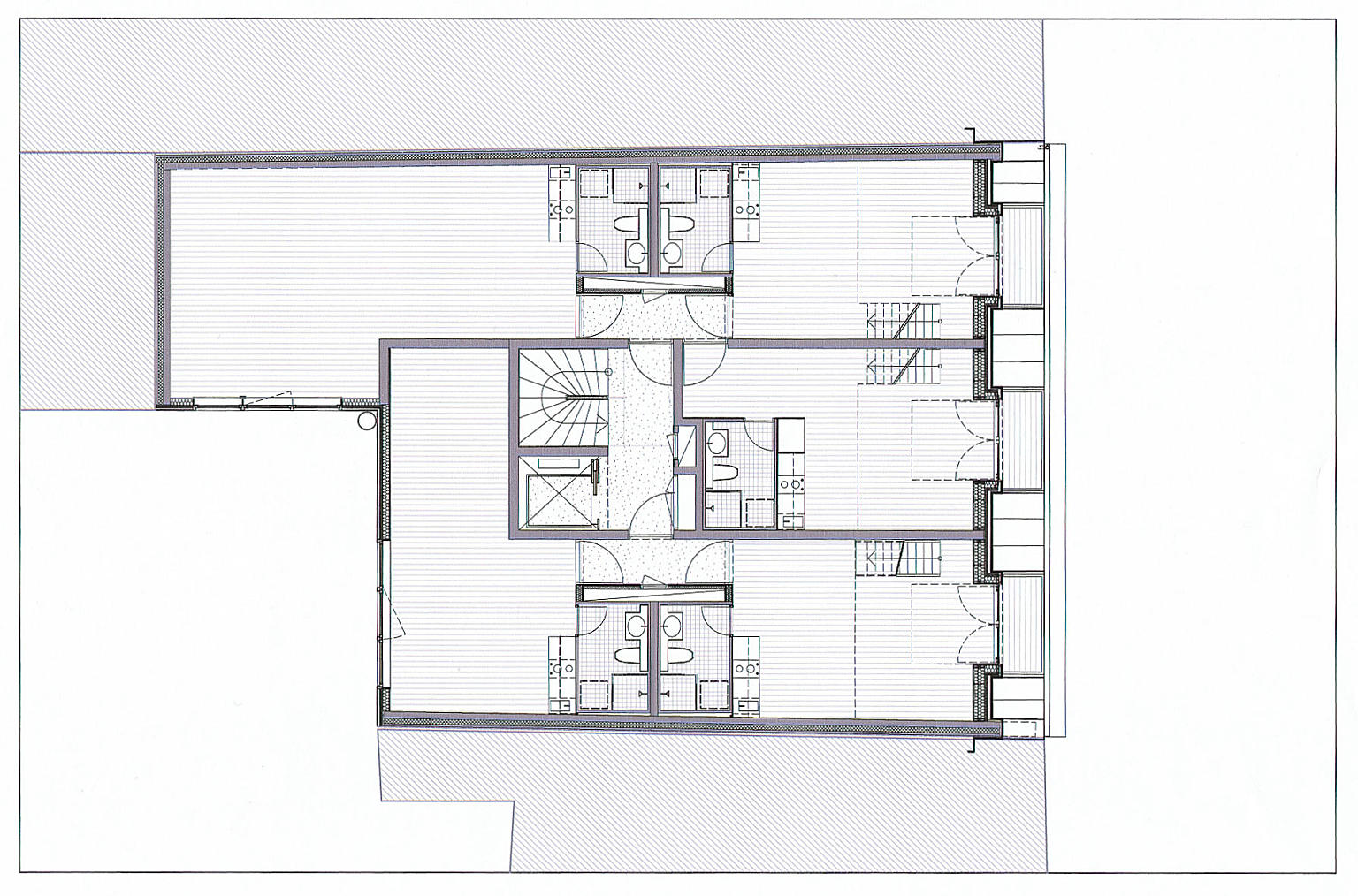
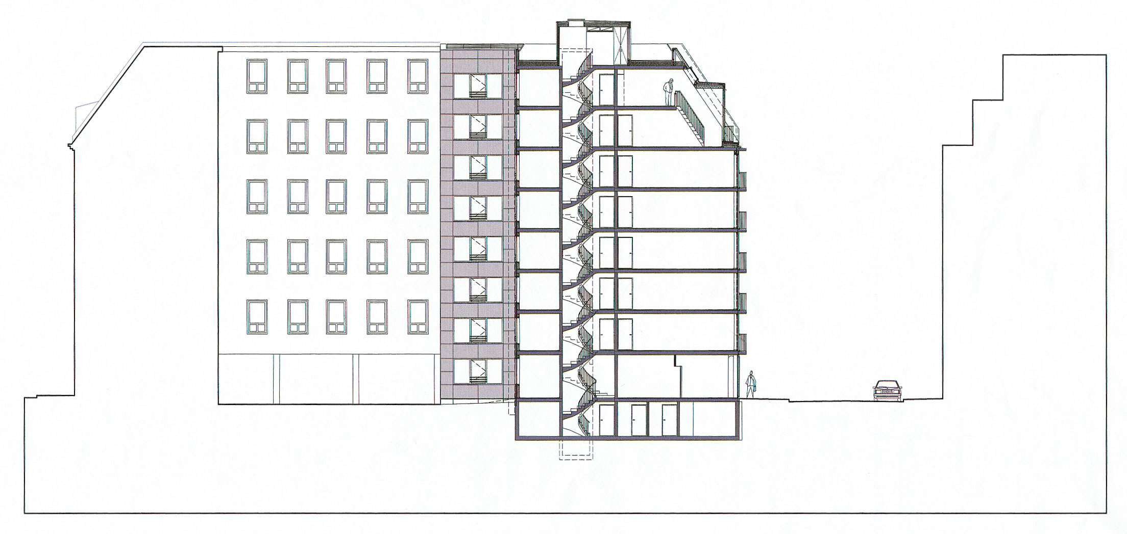
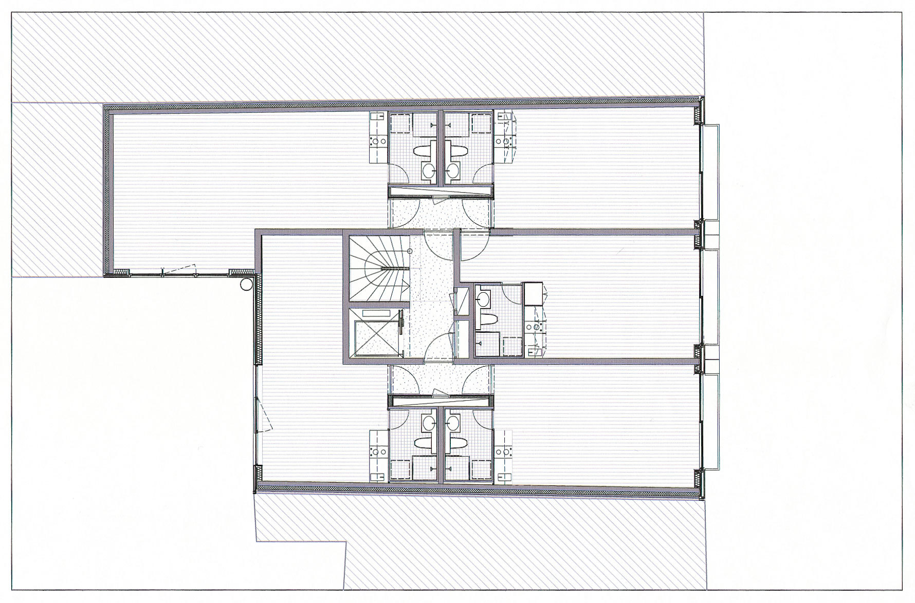
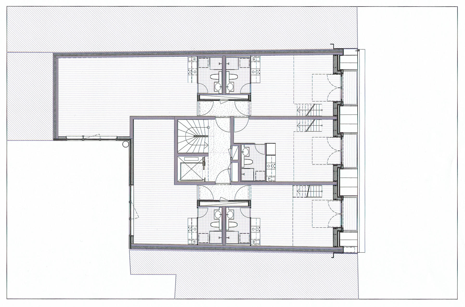
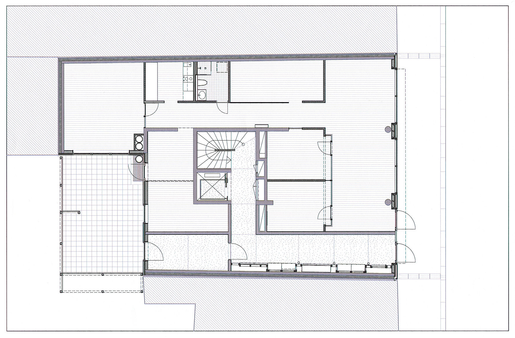
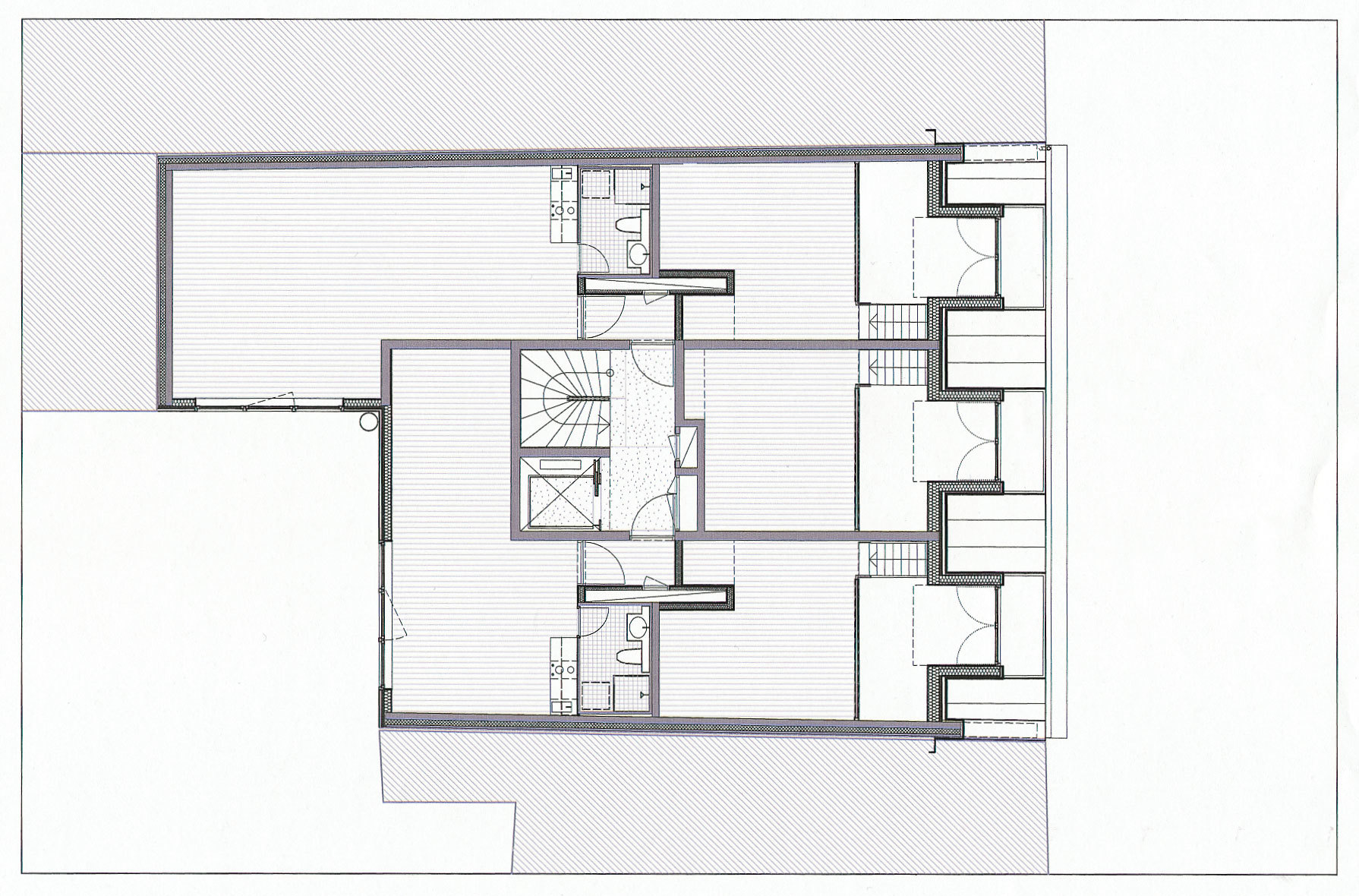
Skippergata 12 er et bolig- og forretningsbygg på åtte etasjer. I første etasje ligger et forretningslokale, og i 2.–8. etasje er det 34 hybelleiligheter fordelt som 5-spennere. En kjelleretasje inneholder tekniske rom samt boder for hybler og forretning. Huset erstatter en eldre tre-etasjes bygård og er den første nye boliggården i kvadraturen på over 100 år.
- Ferdigstilt: Tønnevold Kvadraturen AS
- Adresse: Skippergata 12, Oslo
- Oppdragsgiver: 2002
- Arkitekt: MAD Arkitekter
- Medarbeidere: Trond Elverum, Nicolai Riise og Kurt Singstad, alle sivilarkitekter MNAL
- Konsulenter: Seim & Hultgreen Ingeniørene AS (bygg), Electro Nova AS (elektro), Comfort Consult AS (VVS), Techno Consult AS (brannteknikk), Noteby AS (geoteknikk), BNmegler (megler)
- Brutto areal: 1 950 kvm
- Prosjektledelse/prosjektansvarlig: CM Prosjekt AS
- Kostnader ekskl. mva: 26,5 mill. kr
- Fotokreditering: Jiri Havran
Målsetningen har vært å skape byboliger med spesielle kvaliteter i en urban kontekst. Vi har bevisst valgt å benytte virkemidler som gjør at bygningen til tross for sitt moderne uttrykk blir en integrert del av gatebildet. Virkemidlene kan således ses på som en fortolkning av de arkitektoniske elementer som preger den tilstøtende bevaringsverdige bebyggelsen. Husets yttervegg danner sammen med vindusfeltene en bakgrunn for fremskutte dekkeforkanter og rekkverk. På denne måten uttrykker bygningen vertikalitet med fire gjennomgående søyler fra 1. til 6. etasje, og horisontalitet med gjennomgående balkongelementer. Man oppnår også å få en fasade med ulike sjikt slik de eldre husene i gaten har. Det er lagt vekt på at de små leilighetene skulle få store vinduer. Vinduene er sammenfattet i felter som gjenspeiler rytmen til bygningene på hver side og bygningens oppbygning og indre organisering samt det rytmiske inntrykket som bygningene i gateløpet har. Første etasje er bevisst utformet i harmoni med de øvrige etasjer, men på en slik måte at det ikke er tvil om at det her dreier seg om et forretningslokale. Inngangspartiet til boligene er gitt en representativ utforming og er med på å trekke det offentlige gaterom inn i bygningen.
De minste leilighetene er på 30 kvm, inneholder et bad og en åpen kjøkkenløsning, er boligsprinklet og har balansert ventilasjon. De øverste leilighetene ut mot gaten er utformet som maisonetteleiligheter og har vindusdører med 3,5 m høyde og utgang til en liten terrasse.
Materialer og farger
Det er valgt materialer som holder høy kvalitet og uttrykker varighet og stabilitet. Fasaden ut mot gaten er i naturstein med dekkemarkeringer i betongelementer. Det ble valgt en lys naturstein for å holde gaterommet lysest mulig. Aluminiumsvinduene og stålrekkverket har en mørk farge for å kontrastere den lyse kalksteinsteinfasaden. Fasaden mot gårdsrommet har en enklere platekledning. Inngangsparti og trapperom har terrazzo på gulvene. Kjøkkenet er planlagt som et integrert element i oppholdsrommet. Badene er ferdigproduserte elementer som ble heist på plass.
Taket er tekket med båndtekking i zink, og gulvet på takterrassen er av lerk. Inngangsmøbelet som integrerer postkasser, radiatorer, belysning etc., er i kirsebær.
Skippergata 12
Architect: MAD AS
This combined housing and retail block is the first new building to be built in this historic area of Oslo for a century, with a street grid first laid out in the 1600’s. It has a shop on the ground floor, services in the basement and 34 studio flats above.
The aim has been to create urban quality dwellings, making the modern building a new interpretation of the surrounding historic architecture, an integrated part of the streetscape. The external wall and fenestration forms a backdrop for the protruding floor slabs and horizontal railings, with four columns expressing verticality. This also gives the façade a number of different layers, similar to the older buildings.
The small flats have large windows, gathered in fields which reflect the rhythm of the buildings either side. The smallest of the flats has an area of 30 sq.m, while the top floor flats are maisonettes with full-height doors and an external terrace. The ground floor harmonizes with the other storeys, while still signalling its retail function. The entrance to the flats draws the public space of the street into the building.
The materials are of high quality, stable and durable. The cladding on the street-facing façade is in stone with floor slabs marked in concrete, and contrasting windows and railings finished in black. The rear façade has a simpler sheet cladding. Entrance halls and stairs are in terrazzo, the roof covered in zinc. The bathrooms were installed as pre-fabricated modules.

















