St. Hallvard kirke
Arkitekt: Lund+Slaatto Arkitekter AS
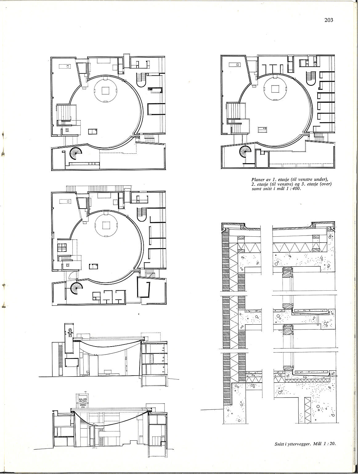
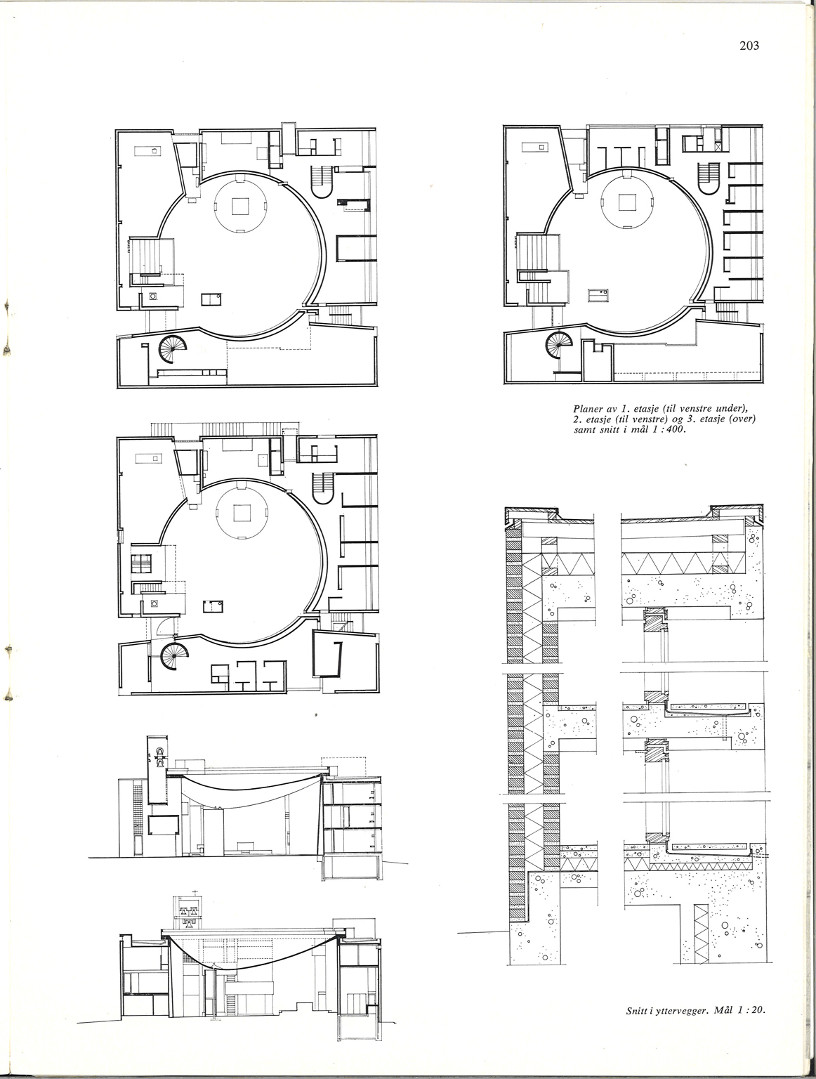
Fra Byggekunst nr. 8-1966.
Prosjektinformasjon
- Ferdigstilt: 1966
- Adresse: Enerhauggaten 4, Oslo, Norge
- Arkitekt: Lund+Slaatto Arkitekter AS
- Medarbeidere: Gaute Baalsrud, Are Telje, Jon Haug og Helge Krafft, alle arkitekter MNAL
Publisert på nett 26. september 2016.
Opprinnelig publisert i Arkitektur N nr. 8 – 1966.
For å få full tilgang på alt innhold i Arkitektur N kan du kjøpe eller abonnere på papirutgaven.











