
UBO 02
Arkitekt:
Anders Ruud,
Sverre Aaker Sondresen
Den vestnorske byggetradisjonen er et resultat av mer enn 4 000 år med erfaring. En sunn videreføring av denne arven vil søke nye formsvar basert på nye sosiale boformer, lokal forståelse, «gammel viten» og nye løsninger. Arkitektur kan være med på å tydeliggjøre verdien i lokal kultur, natur og klima samtidig som den blir et bindeledd mellom den tradisjonelle viten og et moderne uttrykk.
- Ferdigstilt: 2002
- Arkitekt: Anders Ruud, Sverre Aaker Sondresen
- Konsulenter: Kalle Grude, Øyvind Beyer, Helge Hjertholm
- Veileder: Svein Hatløy
- Prosjektledelse: Ruud/Sondresen
- Byggeledelse: Ruud/Sondresen
- Fotokreditering: Svein Hatløy (trad. vernevegg), arkitektene
Prosjektet UBO 02 er resultatet av et «bygge-diplom» ved BAS våren –02. Utgangspunktet for diplomoppgaven var prosjektering og bygging av en enkeltstående ungdomsbolig basert på vestnorsk klima og kultur. Bygget er oppført på Bergen arkitektskoles tomt i Sandviken, men er tenkt plassert på Osterøy nordøst for Bergen.
Viktige stikkord i utviklingen av UBO 02 har vært lokal identitet, økologi, gjenbruk av bygningsmaterialer, selvbygging og god utnyttelse av et lite areal. Boligen åpner for ulik bruk gjennom de ulike årstidene.
ARBEIDSMETODER – KONSEPTUELLE VERKTØY
I letingen etter et konsept ble det nyttig å finne fram til egne konseptuelle verktøy. Ideen om rommet/boligen ble definert som sammenstillingen av seks flater. Når hver av disse blir tillagt en egenverdi ut fra den kontekst de står i, blir dette spilleregler i et forenklet bygningskonsept. Viktige verdier i vurderingen av hver enkelt flate blir orientering (nord/sør), klimapåkjenning, varm/kald, offentlig/privat, innvendig og utvendig bruk osv.
Redefinering av og «sampling» fra den lokale bygningstradisjonen har vært et annet viktig konseptuelt verktøy.
Gjennom hele prosjekteringsfasen ble det skissert i målestokk 1:1. Dette ga en viktig erfaring om landskapsrom, klima, størrelser og sosiale relasjoner. Tidlige skisseringer på tomt ble avgjørende for analysering av situasjonen, det sosiale og klimatiske konseptet helt frem til det endelige formsvaret.
Etter hvert ble det nyttig å bygge romskisser i målestokk 1:1. Disse ga mange av de viktigste diskusjonene, både konseptuelle og tekniske.
VIDEREUTVIKLING AV BYGNINGSARVEN
Klimaet på Vestlandet kan leses i en sammenhengende byggetradisjon fra yngre steinalder. Lemstova og jærhuset med sine luftige mellomrom, tørrmur, svalganger osv. bærer i seg en viktig kunnskap om fremherskende vindretninger, slagregn, sol, fukt og utluftning.
I kjølvannet av ferdighuskjedene følger en stadig mer standardisert bygningslov. I stedet for å praktisere en standard som er så generell at den verken passer i nord eller i sør, burde man ta utgangspunkt i lokale forskjeller. I den lokale byggetradisjonen finnes en genuin kunnskap om vær og vind basert på århundrer med prøving og erfaring. Det er viktig at denne kunnskapen ikke bare konserveres i historiebøker, på postkort og på museum, men også brukes aktivt, omformuleres og videreutvikles.
Bevisstgjøring om bygningstradisjon handler i dag for det meste om «det som var» og lite om «det som skal bli». Å bare kopiere et uttrykk er i seg selv helt historieløst. Derimot burde arkitekten bruke den lokale byggetradisjonen som en idébank og et erfaringsgrunnlag i utviklingen av nye bygningskonsepter. Bak det nostalgiske glansbildet ligger sterke sosiale og klimatiske konsepter. Dersom man kombinerer disse med moderne konsepter eller tilpasser dem til dagens produksjonsapparat, vil man sikre en direkte formidling av en felles kulturarv. Samtidig vil man oppnå et arkitektonisk uttrykk av vår tid, fremfor en dårlig etterligning av noe som har vært. Arven må utvikles med arvingene.
BYGGTEKNISK KONSEPT
Verneveggen av stein bryter opp og beskytter mot slagregn og kalde vinder fra sørøst, ført gjennom Bergensbuesystemet.
Tørrmuren filtrerer vinden og lar vannet renne av ytterst i muren. Et moderne alternativ til den tradisjonelle verneveggen er gabbionkasser fylt med grov pukk.
Grindverket, en sammenhengende vestnorsk byggetradisjon i mer enn 3 500 år, er rask å reise og fornuftig med tanke på klima og økonomi. Den er en åpen form som egner seg for prefabrikasjon. Grindkonseptet er tatt videre og bygget i Masonite-bjelker, med festepunkter i forskalingskapp. Samme materiale er brukt i vegger, tak og gulv.
Laftekassen som isolerende konstruksjon kom til Vestlandet ca. 1 070. Vest-veggen er fylt opp med ved og tettet med kanalplast på begge sider. Kubbene isolerer ved å bryte opp luftrommet og hindre uønsket luftsirkulasjon i veggen. Hulrommene som dannes mellom vedkubbene, isolerer og slipper samtidig lys gjennom veggen.
Halvklimatiserte soner ble en nødvendig regnfrakk da laftekassen møtte et vestnorsk klima. Luftige halvklimatiserte soner gir plass til arbeid og lagring, beskytter den varmere sonen, sørger for utlufting av fukt og gir en differensiert utnyttelse av årstidene.
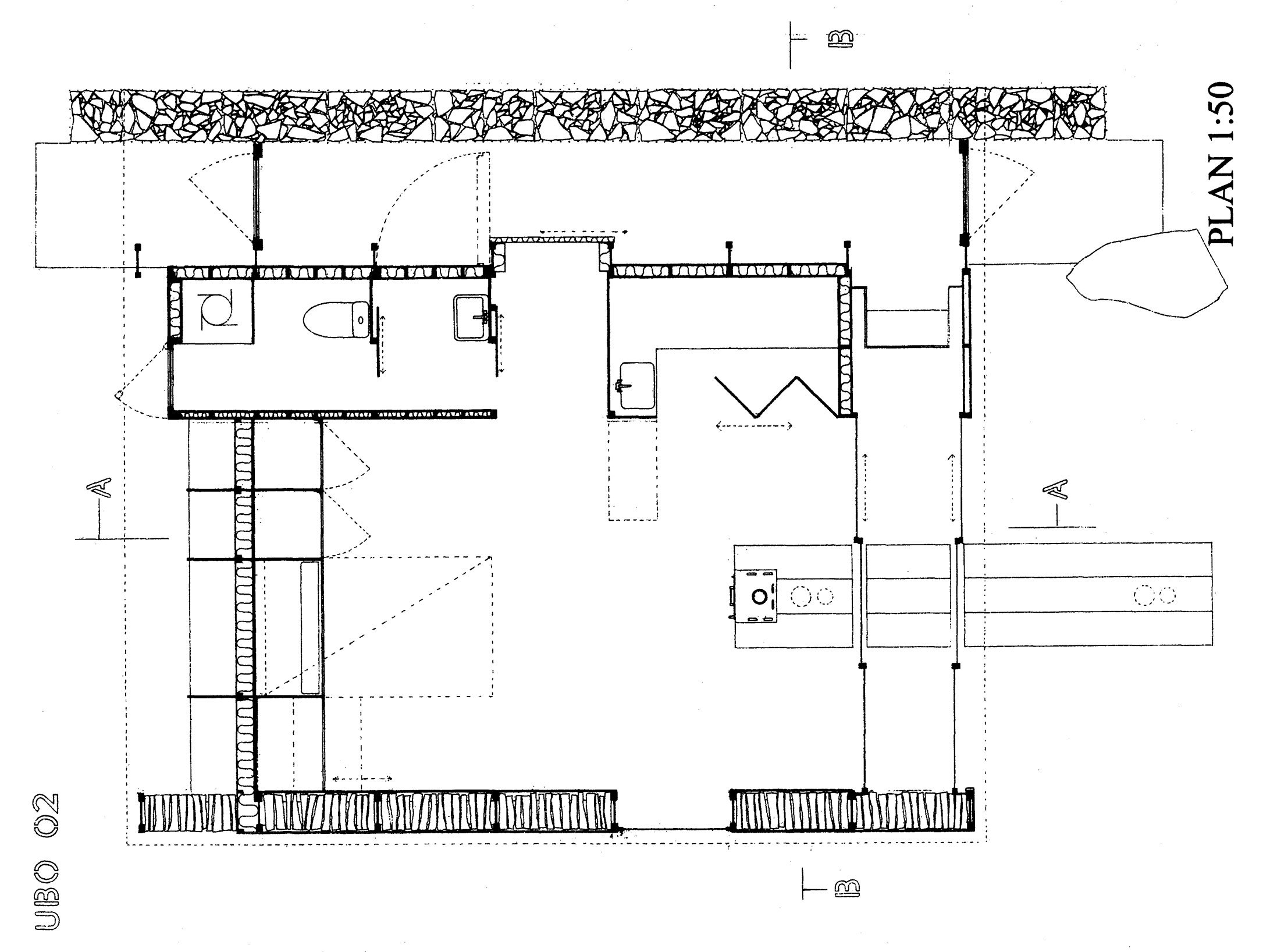
BOLIGEN
Boligkonseptet er et resultat av ideen om «6 flater», en moderne tolkning av lokal byggetradisjon og et forsøk på å minske arealbehovet ved å bruke veggene som «aktive møbler» med romlige funksjoner.
Boligen består i hovedsak av ett varmt rom som beskyttes av en halvklimatisert sone. Rommet forandres fra soverom til oppholdsrom, kjøkken og arbeidsrom ved hjelp av innebygget møblering i veggene. På denne måten kan hver kvadratmeter nyttes på flere måter.
Den sørøstvendte verneveggen beskytter boligen mot slagregn og kalde vinder som føres gjennom det vestnorske dallandskapet.
Veggen mot nordøst inneholder både utvendig og innvendig lagringsplass. Fra innsiden rommer veggen utslagbar soveplass, hjemmekontor samt skapplass. På utsiden fungerer veggen som en bod/hylle for lagring av diverse redskap og sykkel, for klestørk osv.
Mot sørvest har boligen en dobbel glassvegg. Vinterstid blir rommet mellom glassveggene en klimasone. Høst og vår åpnes den innerste glassveggen for å utvide oppholdsrommet, og om sommeren kan begge glassveggene dras til side.
Nordvestveggen består av et dobbelt sjikt kanalplast med ved som isolasjon. Veggen er skrådd 6 grader. Dette åpner blant annet for kveldssol, samtidig som det begrenser innsyn. Den delen av vedveggen som er i den halvklimatiserte sonen, er bare tett på utsiden og brukes til oppvarming av boligen.
Bad og kjøkken er egne funksjonsbokser som åpnes og lukkes. I varme perioder kan badboksen åpnes ut mot den halvklimatiserte sonen.
SELVBYGGING
Prosjektet egner seg for selvbygging. Konstruksjonen kan masseproduseres og er enkel å reise. Gabbionkassene er lette å sette sammen og skal bare etterfylles med stein. Legging av kubbegulv og stabling av vedvegg kan gjøres på dugnad.
GJENBRUK
Boligen er bygget opp av Masonite-bjelker og forskalingsplater. Kubbegulvet i den halvklimatiserte sonen består av kapprester fra sagbruk, containere og lignende. Pukkstein og ved er hentet ut i nærområdet til tomten på Osterøy.
ØKOLOGI
Gjenbrukt materiale, passiv varmelagring og halvklimatiserte soner gir prosjektet en god økologisk profil, men dersom man skal tenke økologi og energiøkonomi, bør man først og fremst senke arealbehovet. Brutto areal er 36 kvm, og av disse er 24 kvm oppvarmet. De halvklimatiserte sonene beskytter den varme kjernen.
ØKONOMI
Elementproduksjon, gjenvunnet bygningsmateriale og god mulighet for selvbygging gir lave byggekostnader. Bad og kjøkken kan prefabrikkeres. Dette reduserer antall arbeidstimer. En styrke ved prosjektet er at det enkelt kan tilpasses omgivelsene, samtidig som det egner seg for serieproduksjon. UBO 02, slik det fremstår i dag, er først og fremst prosjektert for en rural vestnorsk situasjon. Men en moderne omformulering av byggetradisjon og arkitekturhistorie er like aktuelt i en urban situasjon.
UBO 02 – SINGLE HOUSE
Architects: Anders Ruud and Sverre Aaker Sondresen
This model experimental dwelling for young people was erected in the grounds of the Bergen School of Architecture as part of a diploma project. The house is
based on a modern reformulation of Norwegian West coast building traditions, and local identity, ecology, recyled build-ing materials and self-build have been central elements of the design, which was developed using full-scale material sketches.












