
Vålerenggata 26 A
Arkitekt:
Arkitektskap AS
- Ferdigstilt: 2002
- Adresse: Vålerenggata 26 A, Oslo
- Oppdragsgiver: Ingeborgg. 4 AS
- Arkitekt: Arkitektskap AS
- Medarbeidere: v/Asle Strøm, sivilark. MNAL. Medarbeider: Henrik Nømm, sivilark. MNAL
- Konsulenter: Seim og Hultgreen AS (bygg), Brekke og Strand AS (lyd), Mursenteret/Optiroc AS (murverk)
- Hovedentreprenør: Hasle Entreprenør
- Prosjektledelse: arkitekten
- Kostnader: 10 725 000 kr eks. mva.
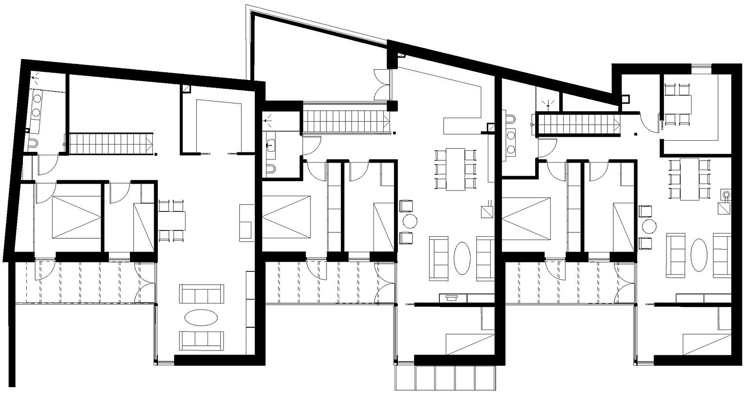
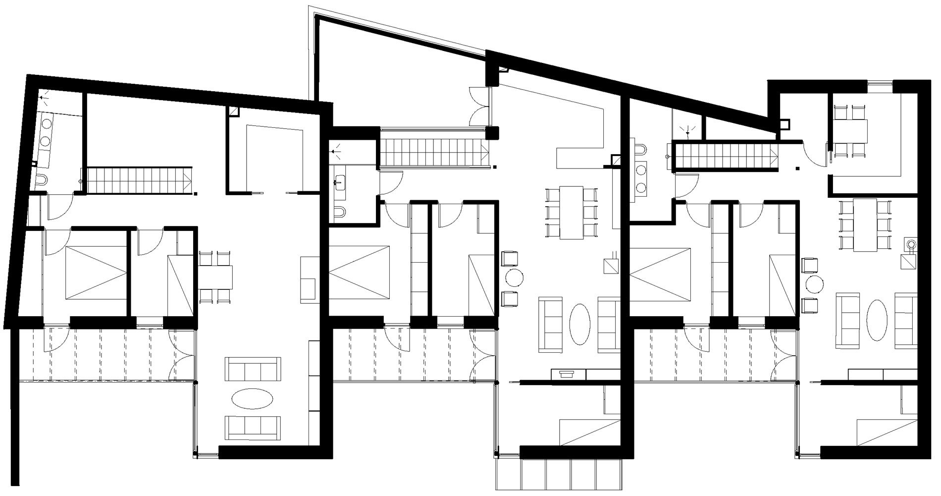
- Brutto areal: 750 kvm inkl. garasje. Bruksareal og leiligheter: 3 stk 3-roms (64,3 – 73.2 kvm BRA), 3 stk 4-roms (108,3 –121,8 kvm BRA), totalt 556,2 kvm BRA
- Fotokreditering: Nils Petter Dale og arkitekten
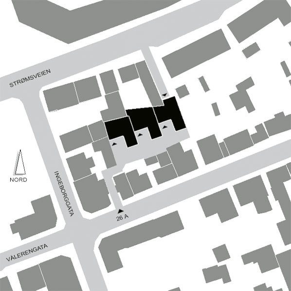
På en tomt på 660 kvm med brannvegger mot naboene på tre sider skulle det innpasses maksimalt boligareal i tett småhusbebyggelse. Det var krav til gode utearealer – private og halvprivate. Parkering ble lagt under terreng.
Tomten var tidligere næringsareal med lagerbygg og kontorer, og ligger i bevaringsområdet med småhus på Vålerenga i Oslo.
Bebyggelsen
Bebyggelsen er tilpasset eksisterende bebyggelse på Vålerenga mht. volumoppdeling og skala, men har et moderne formspråk og en materialbruk som gir bebyggelsen et selvstendig uttrykk. Materialbruk og formspråk knytter seg mer til eksisterende bakgårdsbebyggelse for smånæring enn til trehusbebyggelsen mot gatene.
Bebyggelsen er oppført i to etasjer og er delt opp i tre hus. Hvert av husene er bygget opp rundt et lite atrium som inneholder innganger og små private hageparseller for de to leilighetene i huset. Atriene vender mot sydvest. Oppdelingen av bygningskroppen omkring atriene gir leiligheter og uterom gode solforhold samtidig som bebyggelsen får intime dimensjoner. Sydvestfasadene er utnyttet til maksimalt lysinnfall uten sjenerende innkikk. Småleiligheter på terreng er ensidig vendt mot atriet, mens de store leilighetene i 2. etasje har overlys og inntrukket takterrasse som dagslyskilde i tillegg til sydvestfasade.
Konstruksjoner og materialbruk
Det er valgt bærende murverk som konstruksjonsprinsipp, noe som gir gode egenskaper både når det gjelder energibruk, inneklima, brann- og lydforhold. Ytterveggene er bygget som en diffusjonsåpen konstruksjon, og fungerer varme- og fuktregulerende. De leilighetskillende konstruksjonene er utviklet i samarbeid med produsenten og Mursenteret. Hensikten var å finne fram til vegg - og dekkekonstruksjoner med lydegenskaper som tilfredsstiller dagens forskrifter. Lydegenskapene til ferdige konstruksjoner er målt med tilfredsstillende resultater.
Yttervegger er murt med lys oker struktur teglstein utvendig og leca finblokk (12,5 cm) innvendig. Konstruksjonen er isolert med 150 mm mineralull og har luftspalte for drenering av fukt. Innvendig overflate er pusset med kalkpuss som i oppholdsrom er etterbehandlet med silikatmaling. Leilighetskillende vegger er utført som murte dobbeltvegger i 1/2 steins tegl med mineralull i hulrommet. Veggene står stort sett som en ubehandlet tegloverflate.
Dekker mellom leiligheter er utført i 20 cm hulldekker med 40 mm Optiroc sparkelmasse med trinnlyddemping og innstøpte rør for gulvvarme. Alle oppholdsrom har parkett i lønn, oljet eller lakkert, og alle våtrom har keramiske fliser på gulv.
Energisystem
Det er valgt vannbåren gulvvarme som oppvarmingssystem. Energikilden er en varmepumpe som henter varme ut fra to brønner som er boret ca. 100 meter ned i fjell. Det er balansert ventilasjon med varmegjenvinning som styres fra ventilatorskap over komfyr. Leilighetene i 2. etasje er tilrettelagt for naturlig ventilasjon ved at det er lufteklaff over dør i 1. etasje og lufteluker i overlys.
Utomhus
Leilighetene i 1. etasje har privat uteareal på terreng foran stue og inngang. Gangarealene er belagt med heller i granitt, mens øvrige arealer i atriene har lys singel og gress samt bed for blomster og klatreplanter. Tørrmur i granittblokker på ca. 50 cm løfter terrenget mot naboene i syd og danner en flate for beplantning av mangfoldig vegetasjon.
Det utvendige taknedløpet tas imot av et steinkar i granitt, og vannet føres videre i en åpen granittrenne inn mot punkter før det tas opp av dreneringssystemet.
Housing, Vålerenggata 26 A
Architect: Arkitektskap AS
The brief was to build a maximum number of dwelling units with good external areas on a narrow site with party walls in three sides. The site is located in an area consisting of old protected timber houses.
The new structure has taken on the scale and volume distribution of the surrounding buildings, but with a modern use of form and materials, referring more to existing workshop backyards than to the traditional timber street facades. The projects is divided into three buildings, each centred on a small atrium containing entrances and small gardens for each unit. The smaller flats face the atrium as their only sources of daylight, while the larger upper flats also have skylights and a recessed roof terrace.
The outer wall is in vapourpermeable masonry, with 150 mm insulation and an inner finish of lime plaster. Heating is through waterborne under floor pipes, the energy source a heat pump with two 100-metre wells.






