
Casa Oslo
Arkitekt:
Oscar Niemeyer,
Per Hovdenakk
- Ferdigstilt: urealisert
- Arkitekt: Oscar Niemeyer, Per Hovdenakk
På nyåret 1998 besøkte Kaare Berntsen og undertegnede Oscar Niemeyer på hans kontor på Copacabana i Rio de Janeiro.
Kaare Berntsen ville forsøke å få Niemeyer til å tegne en enebolig som han ønsket bygget ved Oslofjorden. Kaare Berntsen hadde besøkt Brasilia og ellers ett Niemeyer-bygg i Sao Paulo og Rio de Janeiro, og var blitt bestemt på å få et Niemeyer-bygg til Norge.
Selv hadde jeg hatt sporadisk kontakt med Oscar Niemeyer i om lag ti år. Jeg arbeidet for Biennalen i Sao Paulo, som har til huse i Ibirapuera-parken, hvor Niemeyer tegnet åtte bygninger. I 1991 planla biennalen et tilbygg, og i den anledning deltok jeg i en serie møter med Oscar Niemeyer.
Møtet i Niemeyers enkle studio på Copacabana ble kort og effektivt. Han ville overveie forslaget, men ba om opplysninger om landskap, hvem skal bo der, solens gang, temperatursvingninger, snø, osv.
Det fikk han et par uker senere, og i et nytt møte i mars viste han meg noen «notater» i form av tegninger. Stort sett var det videreføringer av de ideer som ligger til grunn for det hus han bygget til seg selv i 1963 nær Rio.
Så lå prosjektet i dvale et godt år. Niemeyer sa senere at han nesten hadde gitt opp ideen om et «Casa Oslo». Men med en ny forsyning fotografier av norske landskaper, boka om Sverre Fehn og en begeistret rapport fra Stockholms skjærgård (!) fra medarbeideren Ricardo Antonia, gikk han løs på prosjektet på nytt.
En ettermiddag høsten 2000 viste han meg en bunke tegninger. De gikk i alle retninger, og det var tydelig at han også selv var i villrede. Klokka ni neste morgen lå så tegningen den – den som ble den endelige og siden er blitt bearbeidet og pusset på, og forventes realisert i løpet av 2003 eller 2004.
«Casa Oslo» har ført til flere bygninger (realisert eller prosjektert) i Brasil, mest oppsiktsvekkende et museum i Curitiba (bygget på 6 måneder!).
De siste tegningene jeg har sett, viser en videre-utvikling av Oslo-ideene. 95 år gamle Oscar Niemeyer arbeider som aldri før. I sitt spartanske Copacabana-kontor mottar han daglig personer og delegasjoner som ønsker seg bygninger av ulike slag. Nesten ingen får nei – skjer det, er det av politiske årsaker; for eksempel New Yorks borgermester Guilliani, som ønsket seg Niemeyers forslag til nybygg på Twin Tower-tomten. USA vil Niemeyer ikke ha befatning med. Men til Havana og Moskva tegner han p.t. store prosjekter, og Brasils nye sosialist-president Lula har bedt Niemeyer fullføre Brasilia, dvs kulturdelen som ble sløyfet av økonomiske årsaker den gang i 1960-årene.
Per Hovdenakk
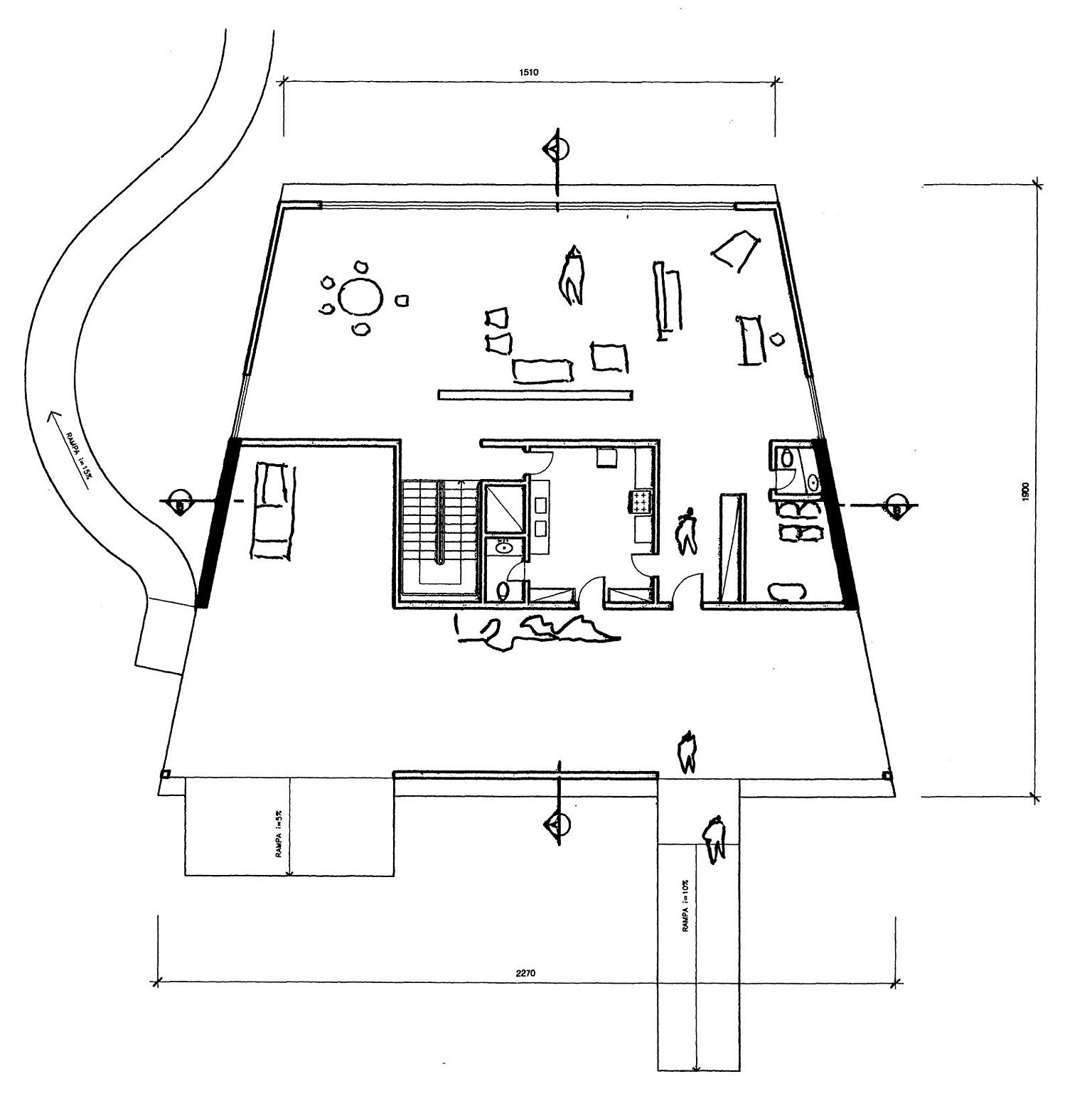
CASA OSLO
by Oscar Niemeyer
The project for a single-family house by the Oslo fjord was the result of a visit by the client, Kaare Berntsen, and the architect Per Hovdenakk to Niemeyer’s offices in Rio de Janeiro in 1998. Berntsen had visited Brasilia and other Niemeyer buildings, and was set on having a Niemeyer house built in Norway. I knew Oscar Niemeyer from my work on the Sao Paulo Biennale.
The meeting was short an effective, and after receiving the necessary information a couple of weeks later, Niemeyer presented some sketches, based on the ideas behind his own house from 1963. After a period of inactivity, a pile of drawings appeared for a meeting in the autumn of 2000. The basic design for «Casa Oslo», meanwhile, has resulted in several finished buildings in Brazil, most notably a museum in Curitiba. Realisation of the Oslo project is expected during 2003 or 2004.
Per Hovdenakk
Dear Mr. Per
The design of a residence is, sometimes, limited to the search of the best solution within the presented briefing. In this case, however, the confidence that you trusted me as a professional architect, made my task much more complex, having to imagine, what, within ny architecture, would really please you.
I examined many hypothesis then, although, ending up preferring the very first sketches.
In my search, l begun by a solution in which the house would be suspended on the terrain, and the bedrooms in a kind of mezzanine above the great salon. But soon l put this option, aside – it looked to me like an apartment, without that special attraction that a private house deserves (1).
Then l tried another solution. The
house always on columns, with livingrooms and bedrooms on the same floor. But it didn’t pleases me either; it would take too much room on the site (2).
And l came back, like many times it happens, to the very first sketches (3).
A different house. Different from all the houses I have ever designed. With its curved covering, the house one meter
above the terrain, and the bedrooms underneath, adapted to the terrain.
I worked very hard on this solution and l feel very comfortable to defend it. The
suites distributed in a simple and economical way. All equal, served by a gallery with bathrooms, clothes closets, deposits, etc. Above: the living rooms. Overlooking the landscape and directly linked to the services area (kitchen, etc.) and the home
theatre room.
The technical and structural part of this house satisfies me particularly. And it’s easy to explain the way I did it.
First of all, this cut on the terrain (4). Then the structural support (5). Following, the living rooms slab. 60 cm thick (6),
working like a trussed beam, a rod, on which the covering’s curved plaque,
supports itself naturally (7).
After receiving more accurate plants l could better understand the site; the two small houses on its both sides, and the terrain less inclined and more close to the sea than l imagined. And then the problem of placing the designed house raised up.
There were two hypothesis to be considered. One, near the road, what would give more emphasis to the house’s architecture. The other, which I prefer, would be closer to the sea, integrated to the landscape, more intimate, visually far from the two existing neighbour houses.
It’s a house where I would like to live. Intimate and welcoming, integrated to the landscape; creating, from its distinguished form, the surprise that good architecture reclaims (8).
Oscar Niemeyer











