
Hægstad Gård
Arkitekt:
Odd Slyngstad Sivilarkitekter AS
- Ferdigstilt: 2002
- Adresse: 6218 Hellesylt, Stranda
- Oppdragsgiver: Hægstad Gård AS
- Arkitekt: Odd Slyngstad Sivilarkitekter AS
- Medarbeidere: Odd Slyngstad Sivilarkitekter AS v/ Harald Hjelle, sivilark. MNAL Medarbeidere: Atle P. Larssen, ingeniør, Odd Slyngstad, sivilark. MNAL, Ana Maria Hoyos, sivilark. MNAL og Øystein Bjørkavåg, tegner
- Landskapsarkitekt: Odd Slyngstad Sivilarkitekter AS
- Landskapsarkitekt medarbeidere: arkitekten
- Interiørarkitekt: Odd Slyngstad Sivilarkitekter AS, Rom Interiørarkitekter AS
- Interiørarkitekt medarbeidere: Interiør: arkitekten. Interiørarkitekt butikkinnredning: Rom Interiørarkitekter AS v/ Milla Krogstad
- Konsulenter: Stavsengs Ingeniørfirma AS (bygg), Karl Kvalsund AS (elektro), Techno Consult Møre AS (VVS)
- Prosjekteringsledelse: Arkitekten
- Kostnader eks mva: 8,6 mill. kr (entreprisekostnad)
- Prosjektledelse og hovedentreprenør: Hellesylt Trevare AS
- Brutto areal: 645 kvm
- Fotokreditering: Per Eide og Odd Slyngstad
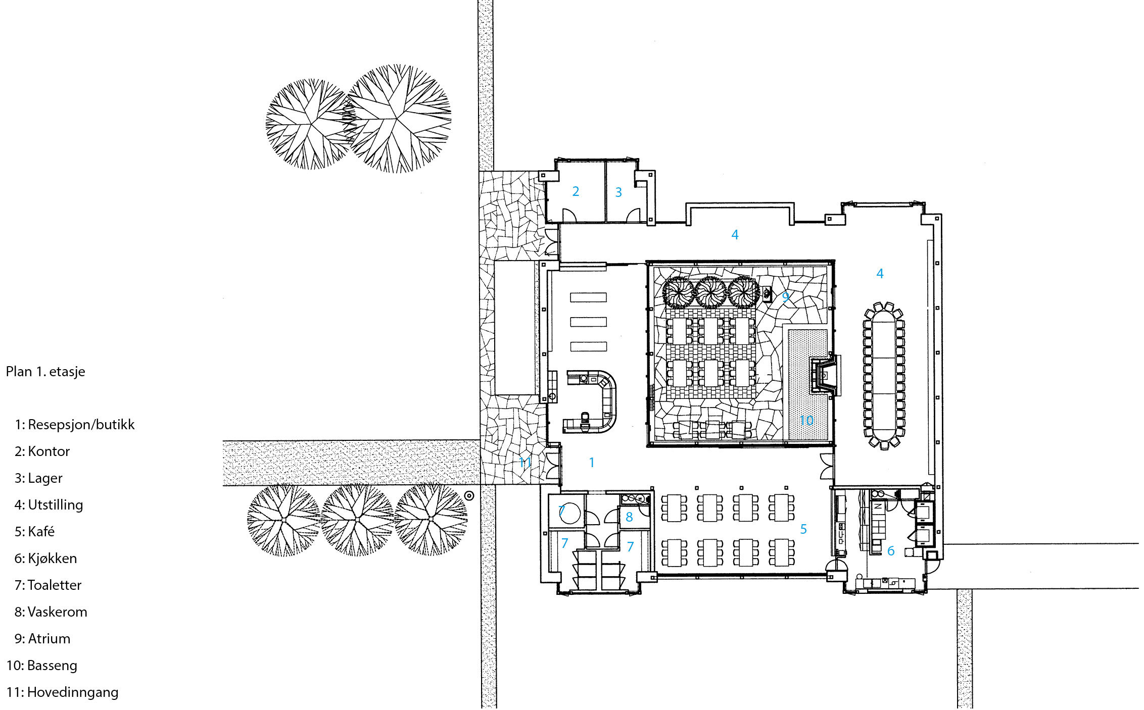
Hægstad Gård er et kunst- og turistsenter på Hellesylt i Møre og Romsdal. Bygget huser en fast utstilling av den lokale kunstneren Oddvin Parr, som i mange år har arbeidet med en serie store trefriser basert på Ibsens Peer Gynt. Herav navnet Hægstad, hentet fra Peers «bruderov på Hægstad».
Foruten utstillingsarealer inneholder bygget også restaurant og suvenirbutikk. Utenom turistsesongen vil driften først og fremst basere seg på utleie til private selskaper og ulike kulturarrangementer.
Sentrum av Hellesylt preges av frittstående lave bygg i én og to etasjer som varierer fra villaer i sveitserstil til nyere industribygg. I dette sammensatte bildet falt det naturlig å skape et eget «sted», både funksjonelt og formalt.
Den innadvendte organiseringen er derfor valgt både for å gi en ramme om tilskuerens opplevelse av kunsten og som parallell til det tradisjonelle norske gårdstunet fra Peer Gynts verden. En av hovedideene bak planløsningen har dessuten vært å lage en naturlig vandring rundt i anlegget fra ankomst via utstilling og restaurant til suvenirbutikk. Denne tanken, kombinert med ideen om å skape en «lukket» verden, har ført frem til planen: et atriumhus bestående av to parallelle hovedbygg bundet sammen av to lavere mellombygg, som alle åpner seg mot det sentrale uterommet. Herfra oppleves de majestetiske fjellene omkring, mens øvrig sentrumsbebyggelse og biltrafikk er fraværende.
Sammenhengen med det tradisjonelle norske gjenspeiler seg også i materialvalget, der grovhugget naturstein og eksponerte trekonstruksjoner i kombinasjon med glass utgjør hovedbestanddelene. Gulvene er slipt betong, med parkett i restaurantdelen. Hovedfløyene har spesialformet akustisk himling mellom sperrene av limtre.
Hægstad gård
Architect: Odd Slyngstad Sivilarkitekter AS
Hægstad gård is an art- and tourist centre at Hellesylt on the mid-western coast of Norway. It houses a permanent collection of the art of Oddvin Parr, based around the story of Henrik Ibsen’s Peer Gynt. Outside the tourist season it will be hired out for private gatherings and cultural events.
The introverted organisation is inspired by the traditional Norwegian farmyard and gives a frame to the experience of the art. Together with the marked circulation route, this has led to the atrium house solution with a central open space, from where you have a view to the surrounding mountains.
The connection to traditional architecture can also be traced in the materials, rough natural stone and exposed timber structures combined with glass.











