
Kontorbygning på Nesodden
Arkitekt:
Eivind Øyen
Mitt ønske var å skape kort avstand mellom arbeid og privatliv, og samtidig høyne kvaliteten på begge. Derfor bygde jeg kontoret på Nesodden.
- Ferdigstilt: 2002
- Adresse: Enerhøgdveien 21, 1450 Nesoddtangen, Nesodden
- Oppdragsgiver: Eivind Øyen
- Arkitekt: Eivind Øyen
- Medarbeidere: Eivind Øyen, sivilarkitekt MNAL
- Utførende: Tømrer Steinar Johansen, Nesodden og Eivind Øyen
- Kostnader, ekskl. mva: 1,3 mill. kr
- Fotokreditering: Eivind Øyen
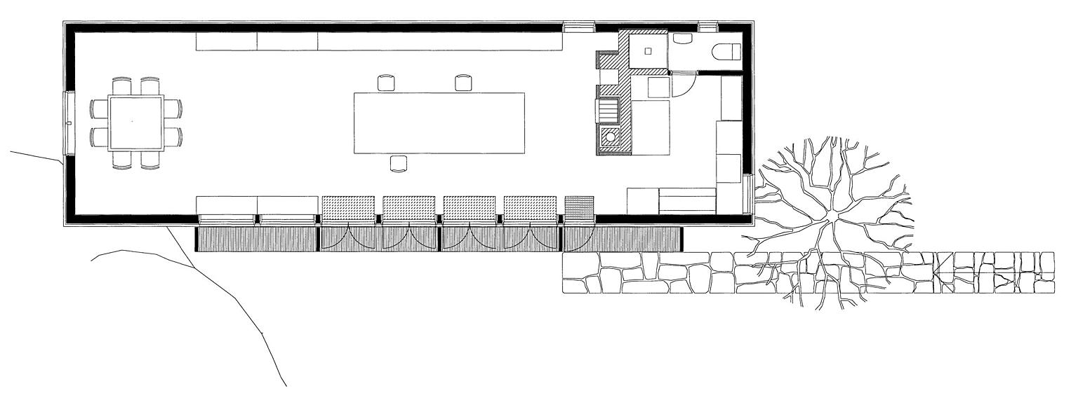
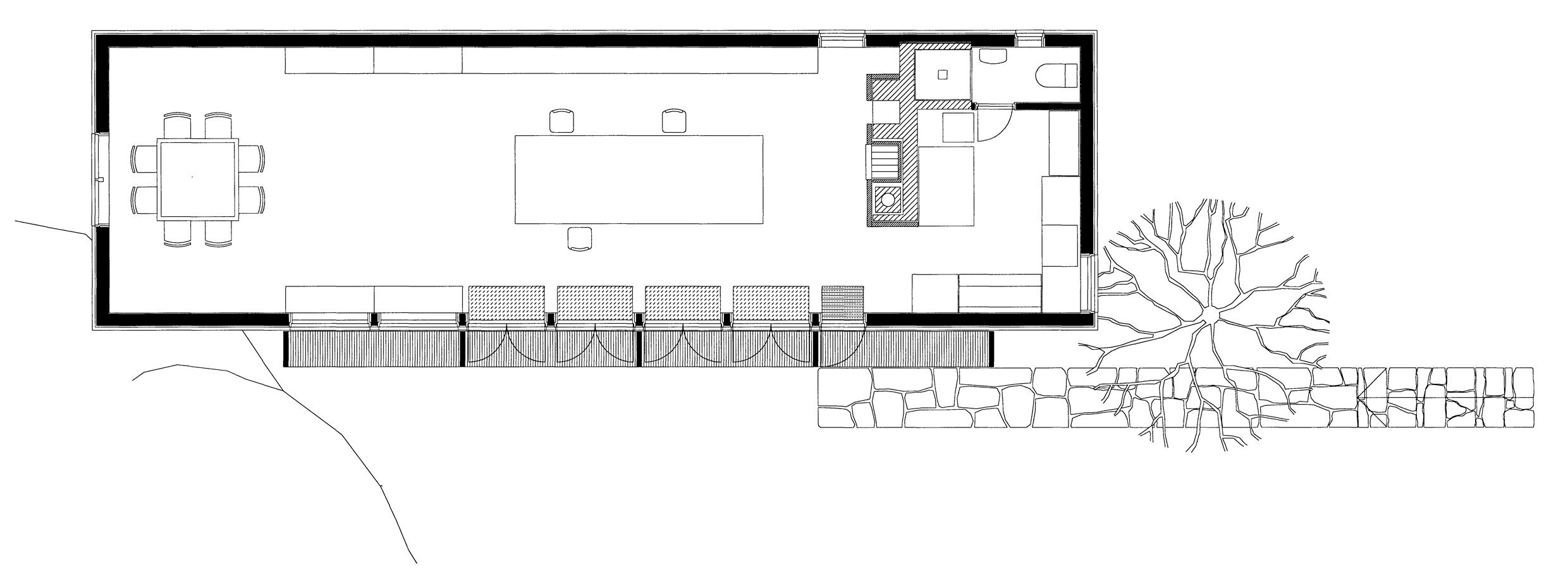
Fra før lå det et bolighus, et atelier, to uthus og et verksted på eiendommen, nå er det til sammen blitt syv tak. Vi er to personer som bor og arbeider her, en billedkunstner og en arkitekt.
Etter å ha arbeidet ti år i et stort og givende kontorfellesskap med 60 arkitekter i Oslo sentrum, visste jeg at en beslutning om å flytte virksomheten ut av byen ville bety dager med færre ytre impulser. Jeg ville derfor gjerne gjøre arbeidsrommet til en inspirasjonskilde.
Kulturlandskapet på Nesoddens østside er ramme om bygdas eldste bosetting. Halvøyas innslag av dyrket mark finnes i hovedsak langs dette nord-sørgående platået ca. 100 m over fjorden. På beitemark langs jordene, med runde svaberg i dagen ligger Europas nordligste eikeskog. Kontoret er bygget i overgangen mellom åkerlandet og de varme fjellknausene som er bevokst med eik og einer.
Fra 20- og 30-årene vokste det frem hytteområder med tomtestørrelse på to-tre mål og smale grusveier. Disse har i løpet av de siste 20 årene gradvis blitt omdannet til grender for fastboende i skråningen mellom fjorden og jordene. Dagens bebyggelse består av små hus med meget forskjellig karakter. God plass rundt husene og frodig vegetasjon dominerer fremdeles helhetsinntrykket. Disse forholdene gir stor grad av frihet ved utforming av nye hus. Likevel valgte jeg låveformen. Farger og stofflighet i naturen fra eik og einer, lavdekt svaberg og høstgul åker har hatt betydning for valg av utvendige materialer.
Bygningen er oppført i tradisjonelt bindingsverk, og har en grunnflate på 17 x 5 m, brutto 85 kvm. Det var naturlig å jobbe med en enkel bygningskropp, plassert langs og 4 m fra tomtas nordgrense. Slik får den en sterk betydning for utvendige romdannelser.
Det var en målsetting å smette huset inn på tomta uten å sprenge bort fjell og uten å felle flere trær enn nødvendig. Gressbakken utenfor sørfasaden ligger i samme høyde som gulvet. Overflatevann blir samlet opp av en 0,6 m bred sjakt langs fasaden, overdekket med tremmer av eikestaver.
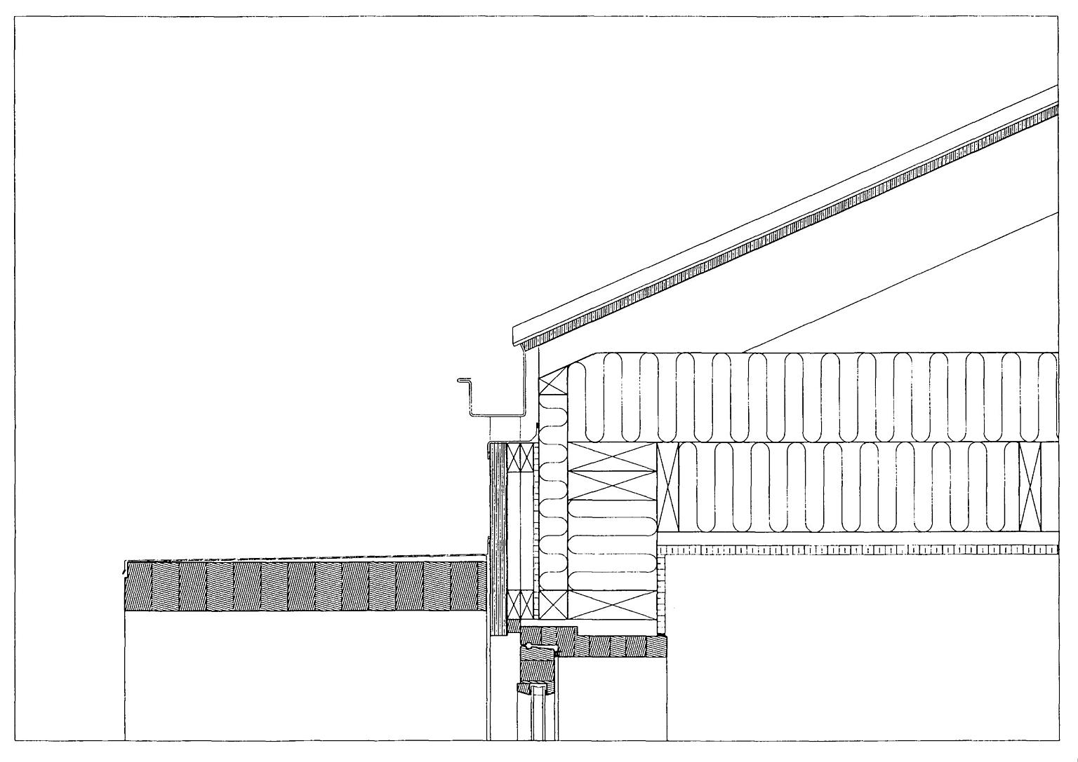
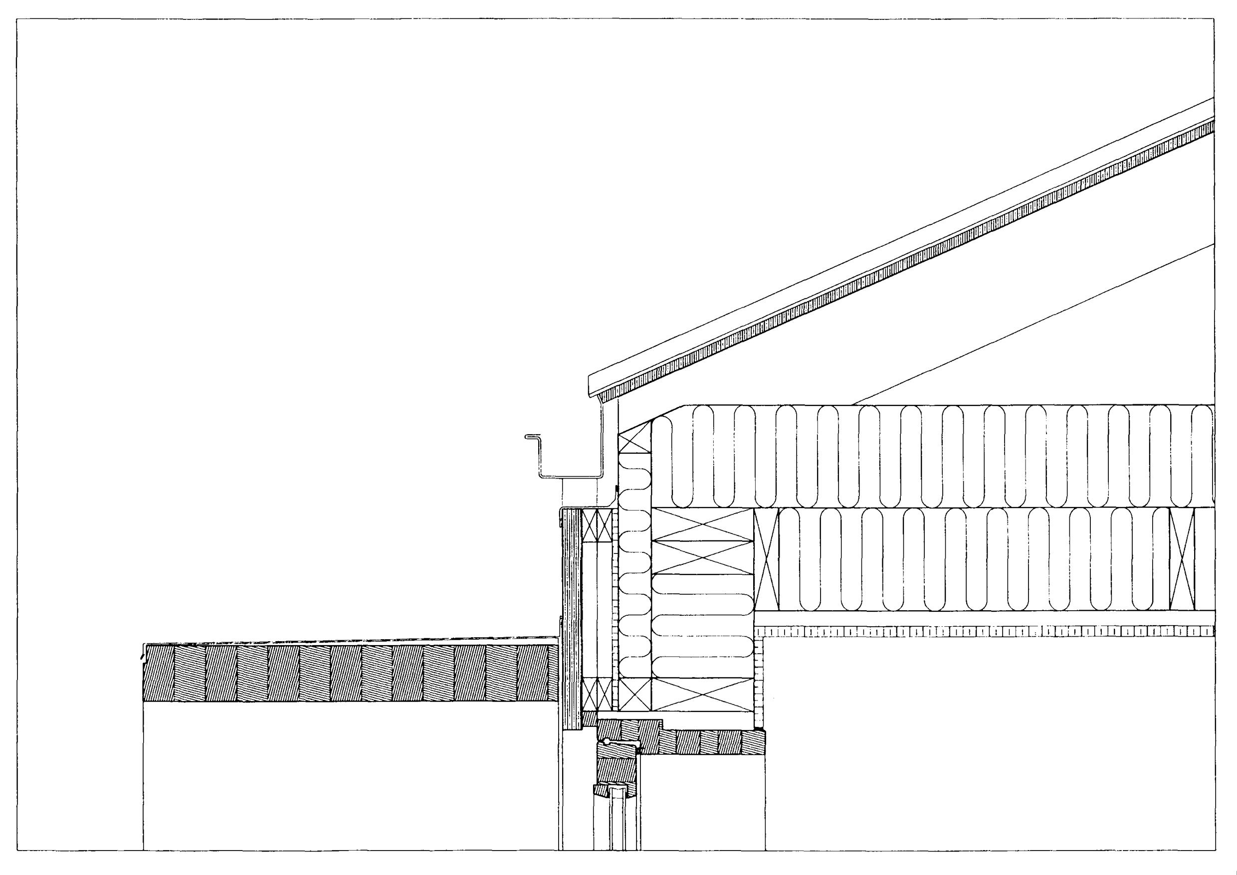
Utvendig har bygningen en åpen spilekledning av ubehandlet eik, spiledimensjon 28 x 36 mm c/c 40 mm. Kledningen er produsert liggende med fremsiden ned på benk, i elementer på ca. 0,6 m bredde. Lekter er festet med skruer av syrefast stål på baksiden av eikespilene. Elementene er reist i full vegghøyde og spikret til veggens utlekting med flat dor gjennom 4 mm spalter med forbehandlet kamstift. Slik får ytterkledningen et mykt uttrykk uten synlige spiker- eller skruehoder.
Taket har båndtekking av kobber. Takrenner, nedløp og øvrige beslag er også av kobber. Vinduer er av laminert lerk, med karm og foring bygget i ett. Rammeverk som danner overdekking langs sørfasade, er også av laminert lerk. Utvendig treverk av eik og lerk står ubehandlet.
Innvendig har arbeidsrommet et netto areal på 52 kvm. Netto takhøyde er 3,1 m.
Bygningen har vannbåren gulvvarme, med egen kurs lagt gjennom betongklosser foran ytterdørene med pålimte dørkeplater av stål i flukt med gulvet. Disse danner selvstendige varmeelementer som også har funksjon som dørmatte. I sommerhalvåret kjøles rommet ved at det blåses luft fra kryperom under bygningen inn over gulvflaten. Gulvet er lagt med 3-toms gulvbord av eik.
Arbeidsbordet på 1,5 x 4,2 m er satt sammen av elementer fra foldevegg av oregon pine som ble revet under ombygging av Folkets Hus i Oslo.
Peisen er kledd med polerte staver i ulike skifthøyder av Vistdalitt fra Romsdal.
A small office building
Architect: Eivind Øyen
The office is a result of the need for a short distance between work and home: the site already comprised dwelling house, studio, workshop and two outhouses, and there are now a total of seven roofs. The building is located on the eastern side of a the Nesodden peninsula, 30 minutes by ferry from Oslo, on the threshold between forest and sunbaked rock covered in oak and juniper. The surrounding built environment has developed during the last 20 years and is very varied.
The new building is a simple main barnshaped volume along the northern side of the site, placed to avoid blasting rock or felling trees. It is clad in oak strips, erected in fullheight elements, giving a soft impression with no externally visible
fixings. The main office space has a total area of 52 sq.m. Heating is laid in the concrete underfloor, and in the summer the room is cooled by blowing in air from a crawlspace under the building. The main working table, measuring 1,5 x 4,2 metres, is made from Oregon pine 3 doors salvaged from the renovation of Folkets Hus in the centre of Oslo.











